J-D-AC(DC36V/0.25kVA)-01Q 壁挂250W应急照明集中电源:修订间差异
无编辑摘要 |
无编辑摘要 标签:移动版编辑 移动版网页编辑 |
||
| (未显示2个用户的3个中间版本) | |||
| 第1行: | 第1行: | ||
{{产品图片|文件名称=J-D-AC(DC36V 0.25kVA)-01Q 壁挂250W应急照明集中电源.png|显示名称=J-D-AC(DC36V 0.25kVA)-01Q 壁挂250W应急照明集中电源}} | {{产品图片|文件名称=J-D-AC(DC36V 0.25kVA)-01Q 壁挂250W应急照明集中电源.png|显示名称=J-D-AC(DC36V 0.25kVA)-01Q 壁挂250W应急照明集中电源}} | ||
{{产品说明书|引用文件名=J-D-AC(DC36V_0.25kVA)-01Q 使用说明书_ID1118}} | {{产品说明书|引用文件名=J-D-AC(DC36V_0.25kVA)-01Q 使用说明书_ID1118}} | ||
{{认证证书|引用文件名=J-D-AC( | {{检验报告|引用文件名=J-D-AC(DC36V/0.25kVA)-01Q 检验报告}} | ||
{{认证证书|引用文件名=J-D-AC(DC36V_0.25kVA)-01Q 认证证书_ID1066}} | |||
{{高清图片|文件名称= J-D-AC_DC36V_0.25kVA_-01Q高清图片}} | {{高清图片|文件名称= J-D-AC_DC36V_0.25kVA_-01Q高清图片}} | ||
[[Category: | == 第一章 产品概述 == | ||
J-D-AC(DC36V/0.25kVA)-01Q、J-D-AC(DC36V/0.45kVA)-01Q、J-D-AC(DC36V/0.6kVA)-01Q、J-D-AC(DC36V/1.0kVA)-01Q 壁挂型应急照明集中电源是应急照明和疏散指示系统的重要组成部分。为现场消防应急灯具提供电源,将应急疏散控制器的各种控制指令转发给现场消防应急灯具去执行,同时将现场消防应急灯具的工作状态实时转发上报给应急照明控制器进行显示和分析判断。是现场消防应急灯具和应急照明控制器之间的桥梁和纽带。该系统主要应用于医院、商场、写字楼、电影院、地下停车场等场所。该产品执行标准为GB 17945-2024《消防应急照明和疏散指示系统》。 | |||
=== 1.1 特点 === | |||
1. 总线通讯方式,共2条回路,8个支路,每条回路支持252个灯具地址; | |||
2. 集中电源具备IP65的防护等级; | |||
3. 全新的系统架构,保证了良好的系统扩展和兼容性能; | |||
4. 内置微处理器,采用SMT表面贴装工艺; | |||
5. 液晶显示的人机交互界面,显示明确、操作简单; | |||
6. 回路输出DC36V安全工作电压; | |||
== 第二章 应急照明集中电源的组成 == | |||
=== 2.1 应急照明集中电源正面外观图 === | |||
J-D-AC(DC36V/0.25kVA)-01Q、J-D-AC(DC36V/0.45kVA)-01Q、J-D-AC(DC36V/0.6kVA)-01Q、J-D-AC(DC36V/1.0kVA)-01Q 应急照明集中电源包括:液晶板、铅酸蓄电池、开关电源、机箱等。 | |||
[[文件:J-D-AC(DC36V_0.25kVA)-01Q 壁挂250W应急照明集中电源 外观1.jpg|400px]] | |||
J-D-AC(DC36V/0.25kVA)-01Q 正面外观图 | |||
[[文件:J-D-AC(DC36V_0.25kVA)-01Q 壁挂250W应急照明集中电源 外观2.jpg|400px]] | |||
J-D-AC(DC36V/0.45kVA)-01Q 正面外观图 | |||
[[文件:J-D-AC(DC36V_0.25kVA)-01Q 壁挂250W应急照明集中电源 外观3.png|400px]] | |||
J-D-AC(DC36V/0.6kVA)-01Q 正面外观图 | |||
[[文件:J-D-AC(DC36V_0.25kVA)-01Q 壁挂250W应急照明集中电源 外观4.png|400px]] | |||
J-D-AC(DC36V/1.0kVA)-01Q 正面外观图 | |||
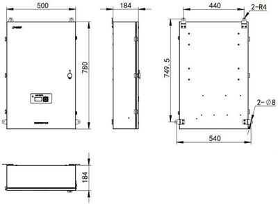
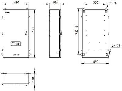
=== 2.2 外形尺寸及结构介绍 === | |||
单位(mm) | |||
[[文件:J-D-AC(DC36V_0.25kVA)-01Q 壁挂250W应急照明集中电源 尺寸1.jpg|400px]] | |||
J-D-AC(DC36V/0.25kVA)-01Q 外形尺寸示意图 | |||
[[文件:J-D-AC(DC36V_0.25kVA)-01Q 壁挂250W应急照明集中电源 尺寸2.jpg|400px]] | |||
J-D-AC(DC36V/0.45kVA)-01Q 外形尺寸示意图 | |||
[[文件:J-D-AC(DC36V_0.25kVA)-01Q 壁挂250W应急照明集中电源 尺寸3.jpg|400px]] | |||
J-D-AC(DC36V/0.6kVA)-01Q 外形尺寸示意图 | |||
[[文件:J-D-AC(DC36V_0.25kVA)-01Q 壁挂250W应急照明集中电源 尺寸4.jpg|400px]] | |||
J-D-AC(DC36V/1.0kVA)-01Q 外形尺寸示意图 | |||
[[文件:J-D-AC(DC36V_0.25kVA)-01Q 壁挂250W应急照明集中电源 内部结构.jpg|400px]] | |||
内部结构图,仅以 J-D-AC(DC36V/1.0kVA)-01Q 示例 | |||
=== 2.3 型号组成 === | |||
仅以J-D-AC(DC36V/1.0kVA)-01Q示例 | |||
[[文件:J-D-AC(DC36V_0.25kVA)-01Q 壁挂250W应急照明集中电源 型号.jpg|400px]] | |||
=== 2.4 接线端子功能说明 === | |||
{| class="wikitable" | |||
|- | |||
! 接线端子 | |||
! 功能说明 | |||
|- | |||
| 主电输入L、N、PE | |||
| 开关电源AC220V输入端子 | |||
|- | |||
| 市电检测L-1、N-1 | |||
| 接市电交流AC220V | |||
|- | |||
| 回路输出 | |||
| 2条回路,8个支路输出(每条回路对应4个支路),用于连接编址型集中电源集中控制型灯具。推荐使用≥ZR-RVS-2*2.5mm²双绞线连接集中控制型灯具。 | |||
|- | |||
| A/H、B/L端子 | |||
| 回路板跳线到CAN通讯(参考2.5跳线说明),用于集中电源与J-C-T-PS01等应急照明控制器通讯,连接A/H、B/L端子接线。CAN通讯距离≤1000米;推荐使用ZR-RVS-2*1.0mm²~1.5mm²双绞线。 | |||
|- | |||
| A/H、B/L端子 | |||
| 回路板跳线到485通讯(参考2.5跳线说明),用于集中电源与J-C-11S80B、J-C-11S80G、J-C-11S80T等应急照明控制器通讯,连接A/H、B/L端子接线。RS485通讯距离≤1000米,推荐使用ZR-RVS-2*1.0mm²~1.5mm²的双绞线。 | |||
|- | |||
| 干接点输入 | |||
| 短路该端子,系统进入应急状态。端子接入DC24V(+/-),系统进入应急状态,区分正负极。默认干接点输入。 | |||
|- | |||
| 应急输出端子 | |||
| 跳线帽在常开端:监视状态,触点断开;应急状态,触点闭合。跳线帽在常闭端:监视状态,触点闭合;应急状态,触点断开。 | |||
|} | |||
接线端子示意图: | |||
J-D-AC(DC36V/0.25kVA)-01Q、J-D-AC(DC36V/0.45kVA)-01Q 接线端子示意图基本一致,仅以J-D-AC(DC36V/0.25kVA)-01Q示例 | |||
[[文件:J-D-AC(DC36V_0.25kVA)-01Q 壁挂250W应急照明集中电源 接线1.jpg|400px]] | |||
J-D-AC(DC36V/0.25kVA)-01Q 接线端子示意图 | |||
J-D-AC(DC36V/0.6kVA)-01Q、J-D-AC(DC36V/1.0kVA)-01Q接线端子示意图基本一致,仅以J-D-AC(DC36V/1.0kVA)-01Q示例 | |||
[[文件:J-D-AC(DC36V_0.25kVA)-01Q 壁挂250W应急照明集中电源 接线2.jpg|400px]] | |||
J-D-AC(DC36V/1.0kVA)-01Q接线端子示意图 | |||
=== 2.5 电源内部跳线说明 === | |||
{| class="wikitable" | |||
|- | |||
! 跳线名称 | |||
! 功能说明 | |||
|- | |||
| CAN/RS485 | |||
| 选择设置两路通讯端子为CAN通讯或RS485通讯,需要同时匹配设置两个跳线帽。出厂默认RS485通讯。 | |||
|- | |||
| 终端电阻120R | |||
| 切换通讯端子120Ω终端匹配电阻,出厂默认0Ω电阻。 | |||
|- | |||
| 应急输出状态(常开/常闭) | |||
| 切换应急输出端子为常开或常闭,出厂默认常开。 | |||
|} | |||
CAN/RS485、终端电阻120R跳线说明示意图: | |||
[[文件:J-D-AC(DC36V_0.25kVA)-01Q 壁挂250W应急照明集中电源 跳线1.jpg|400px]] | |||
应急常开/常闭跳线示意图(仅以J-D-AC(DC36V/1.0kVA)-01Q示例): | |||
[[文件:J-D-AC(DC36V_0.25kVA)-01Q 壁挂250W应急照明集中电源 跳线2.jpg|400px]] | |||
== 第三章 产品功能 == | |||
=== 协议应急功能 === | |||
发生火灾时,应急照明控制器通过协议方式获得火灾报警探测器探测到火源发生点及烟雾弥漫方向,计算逃生路线,通过集中电源将疏散照明指令下发给现场消防应急灯具,灯具在收到指令后进入应急工作状态,如频闪、变向、开灯等工作实时指示最佳、最安全的逃生路线。应急时,“自动应急”或“手动应急”指示灯红色常亮。 | |||
干接点应急,火灾报警控制器在火灾发生后通过模块为该节点提供一个无源或24V有源信号,触发集中电源进入到应急状态。 | |||
=== 故障报警 === | |||
故障时,“故障”指示灯黄色常亮,并有故障声响,显示屏自动切换到故障显示状态,显示相关故障信息。 | |||
=== 电源状态监视 === | |||
在正常监视状态时,主控单元实时监测电源状态,并将检测到的电源数值实时显示在集中电源液晶屏上。 | |||
== 第四章 技术参数 == | |||
{| class="wikitable" | |||
|- | |||
! rowspan="2" | 型号<br>产品特性 | |||
! colspan="4" | 技术参数 | |||
|- | |||
! J-D-AC(DC36V/0.25kVA)-01Q | |||
! J-D-AC(DC36V/0.45kVA)-01Q | |||
! J-D-AC(DC36V/0.6kVA)-01Q | |||
! J-D-AC(DC36V/1.0kVA)-01Q | |||
|- | |||
| 工作温度 | |||
| colspan="4" | -10℃~+55℃ | |||
|- | |||
| 贮存温度 | |||
| colspan="4" | -20℃~+65℃ | |||
|- | |||
| 相对湿度 | |||
| colspan="4" | ≤95%(40±2℃无凝露) | |||
|- | |||
| 供电主电 | |||
| colspan="4" | AC220V(±20%,50Hz) | |||
|- | |||
| 蓄电池种类 | |||
| colspan="4" | 铅酸蓄电池 | |||
|- | |||
| 蓄电池容量 | |||
| 12V/55Ah,1节 | |||
| 12V/100Ah,1节 | |||
| 12V/60Ah,2节 | |||
| 12V/100Ah,2节 | |||
|- | |||
| 蓄电池型号 | |||
| 6-GFM-55 | |||
| 6-GFM-100 | |||
| 6-GFM-60 | |||
| 6-GFM-100 | |||
|- | |||
| 额定输出功率 | |||
| 250W | |||
| 450W | |||
| 600W | |||
| 1000W | |||
|- | |||
| 额定输出电压 | |||
| colspan="4" | DC36V | |||
|- | |||
| 额定输入电流 | |||
| 约2.5A | |||
| 约4A | |||
| 约6A | |||
| 约11A | |||
|- | |||
| 额定输出电流 | |||
| colspan="4" | 6A(单回路) | |||
|- | |||
| 系统容量 | |||
| colspan="4" | 2条回路,8个支路,共252×2个灯具地址,1~4支路对应1回路编址范围1~252,5~8支路对应2回路编址范围1~252 | |||
|- | |||
| 外壳材质/防护等级 | |||
| colspan="4" | 金属/IP65 | |||
|- | |||
| 安装方式 | |||
| colspan="4" | 壁挂式 | |||
|- | |||
| 进线方式 | |||
| colspan="4" | 箱体下进线 | |||
|- | |||
| 外形尺寸(不含挂耳尺寸) | |||
| 328mm×152mm×500mm | |||
| 420mm×188mm×520mm | |||
| 420mm×184mm×780mm | |||
| 500mm×184mm×780mm | |||
|- | |||
| 执行标准 | |||
| colspan="4" | GB 17945-2024 《消防应急照明和疏散指示系统》 | |||
|} | |||
== 第五章 安装调试步骤 == | |||
=== 5.1 安装前检查 === | |||
开箱后取出应急照明集中电源,检查以下几项,如果有损坏或异常情况,请立即致电当地经销商。 | |||
(1) 检查设备的铭牌并确认与您所订购的产品规格一致; | |||
(2) 检查设备液晶屏是否完好、无破损; | |||
(3) 确认包装箱中有钥匙、说明书及保险等随机配件; | |||
(4) 确认集中电源运输过程中无任何损坏(柜体变形、导线磨破、线端脱落、接头或螺丝松动、电池外观是否破损、电池漏液、电池变形等)。 | |||
=== 5.2 安装环境及要求 === | |||
禁止将应急照明集中电源安装在下列任何环境中。 | |||
[[文件:安装环境要求.png|400px]] | |||
(1) 请安装在远离高温、腐蚀、火源、斜坡、雨淋之地; | |||
(2) 请安装在远离金属粉末、尘埃、油、水的地方; | |||
(3) 请安装在远离电磁辐射源的地方; | |||
(4) 请安装在没有振动的场所; | |||
(5) 使用场所:室内。 | |||
=== 5.3 搬运注意事项 === | |||
(1) 设备在搬运过程中要轻搬轻放,严禁重放摔倒; | |||
(2) 设备在搬运过程中严禁与其他硬物磕碰,以免损坏设备; | |||
(3) 设备在搬运过程中禁止硬物顶在前门面板上,防止液晶屏损坏。 | |||
=== 5.4 安装空间要求 === | |||
(1) 设备上部与墙或任何物件距离最少应有60cm的空间; | |||
(2) 机器正面最少要求60cm的空间,设备的前面必需有充足的检修空间; | |||
(3) 设备的顶部不可放置任何物件。 | |||
=== 5.5 电池安装要求 === | |||
(1) 电池放入机箱前,先预安装电池线,电池正极接线柱接红线,负极接线柱接黑线(电池预装时,应避免电池正、负极短路,造成电池或人员的损伤); | |||
(2) 电池线接线端子如图5-1示(仅以J-D-AC(DC36V/1.0kVA)-01Q为例),统一甩向右侧,拧紧固定螺钉后,盖上保护端帽; | |||
(3) 电池安装时,注意电池端子一端靠近箱门一侧,安装电池固定板,固定电池,电池线另一端参考电池接线示意图5-2,连接电源备电端子和温度检测端子。 | |||
(4) 600W和1000W应急照明集中电源两节电池串联线接线时,黑色保护端帽一端连接电池2负极(上面电池),红色保护端帽一端连接电池1正极(下面电池)。 | |||
注意:电池正负极严禁接反,否则会发生短路危险。 | |||
[[文件:J-D-AC(DC36V_0.25kVA)-01Q 壁挂250W应急照明集中电源 图5-1.jpg|400px]] | |||
图5-1 电池安装示意图 | |||
[[文件:J-D-AC(DC36V_0.25kVA)-01Q 壁挂250W应急照明集中电源 图5-2.jpg|400px]] | |||
图5-2 电池接线示意图 | |||
=== 5.6 使用注意事项 === | |||
(1) 请按照说明书5.5要求正确安装电池并连接电池线; | |||
(2) 禁止开机状态下,连接回路线和CAN通讯信号线; | |||
(3) 检查电池线、回路线、通讯信号线连接正常后,再插220V主电,依次打开主电开关、备电开关。 | |||
(4) 电池正负极严禁接反,否则会发生短路危险。 | |||
=== 5.7 蓄电池的更换 === | |||
(1) 本设备使用的铅酸蓄电池建议根据实际使用情况及时更换; | |||
(2) 在日常维护、或月/季度维护时,发现电池漏液、鼓包、破损时,应更及时换蓄电池; | |||
(3) 蓄电池更换方法:打开机箱前面板,切断主电开关、备电开关,拆除电池固定支架,拧开电池正负极的固定螺钉,把原来电池组取出。再参考说明书5.5要求安装相同规格、型号的铅酸蓄电池,最后安装电池固定支架即可。 | |||
== 第六章 产品显示说明 == | |||
=== 6.1 正常监视状态 === | |||
正常监视状态无任何声响:除“主电运行”绿色指示灯亮及充电指示灯在充电状态下红色指示灯亮外,其余所有指示灯不亮。液晶屏显示状态如图6-1、6-2、6-3、6-4,液晶屏循环显示主电电压、电池电压、充电电流、总功率、电源地址、1-8回路的电压电流显示、电池温度等。 | |||
注意:250W和450W只有1节电池,只显示电池1温度和电池1电压;600W和1000W各有2节电池,分别显示电池1温度、电池1电压、电池2温度、电池2电压。 | |||
[[文件:J-D-AC(DC36V_0.25kVA)-01Q 壁挂250W应急照明集中电源 图6-1.jpg|400px]] | |||
图6-1 | |||
[[文件:J-D-AC(DC36V_0.25kVA)-01Q 壁挂250W应急照明集中电源 图6-2.jpg|400px]] | |||
图6-2 | |||
[[文件:J-D-AC(DC36V_0.25kVA)-01Q 壁挂250W应急照明集中电源 图6-3.jpg|400px]] | |||
图6-3 | |||
[[文件:J-D-AC(DC36V_0.25kVA)-01Q 壁挂250W应急照明集中电源 图6-4.jpg|400px]] | |||
图6-4 | |||
=== 6.2 集中电源故障状态 === | |||
集中电源报故障时,发出故障声响,显示故障类型,根据面板上显示的故障种类,找专业人员处理。故障排除后,故障显示和声响可自动消失。 | |||
=== 6.3 集中电源报应急 === | |||
集中电源报应急发出应急声响,显示应急类型。 | |||
== 第七章 集中电源操作 == | |||
=== 7.1 产品操作显示区 === | |||
产品操作显示区由显示屏、状态指示灯及操作按键组成,中间区域是显示屏,显示屏上侧是状态指示灯,最右侧区域是操作按键,如图7-1所示。 | |||
[[文件:J-D-AC(DC36V_0.25kVA)-01Q 壁挂250W应急照明集中电源 图7-1.jpg|400px]] | |||
图7-1 | |||
面板指示灯功能描述: | |||
{| class="wikitable" | |||
|- | |||
! 指示灯 | |||
! 状态说明 | |||
|- | |||
| 主电运行指示灯 | |||
| 主电运行时,主电运行指示灯绿灯常亮 | |||
|- | |||
| 充电指示灯 | |||
| 当电源开始充电时,充电指示灯红灯常亮 | |||
|- | |||
| 故障指示灯 | |||
| 当系统中报出故障信息时,故障指示灯黄灯常亮 | |||
|- | |||
| 自动应急指示灯 | |||
| 当系统进入自动应急,自动应急指示灯红灯常亮 | |||
|- | |||
| 手动应急指示灯 | |||
| 系统进入手动应急,手动应急指示灯红灯常亮 | |||
|} | |||
面板按键功能描述: | |||
{| class="wikitable" | |||
|- | |||
! 按键 | |||
! 操作说明 | |||
|- | |||
| 测试 | |||
| 按下后,系统进入应急状态,抬起后,系统自动退出应急状态。 | |||
|- | |||
| 取消 | |||
| 返回上一层菜单 | |||
|- | |||
| 功能 | |||
| 菜单键 | |||
|- | |||
| 消音 | |||
| 当有故障信息或应急时,蜂鸣器响。按下消音按键,蜂鸣器消音。 | |||
|- | |||
| 确定 | |||
| 对输入的数据和功能进行确认。 | |||
|- | |||
| 上下箭头 | |||
| 选项切换及翻页。 | |||
|- | |||
| 左右箭头 | |||
| 输入位置切换、退格。 | |||
|} | |||
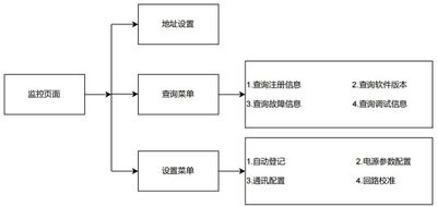
=== 7.2 菜单拓扑图 === | |||
[[文件:J-D-AC(DC36V_0.25kVA)-01Q 壁挂250W应急照明集中电源 菜单拓扑.jpg|400px]] | |||
=== 7.3 菜单操作 === | |||
集中电源显示首页如图6-1所示。当无事件时,显示屏上显示当前工作实时参数信息。 | |||
在显示屏右侧的按键盘,键入【功能】,显示窗口出现“主菜单”对话框,包括地址设置、查询菜单、设置菜单三个功能选项,如图7-2所示。可用屏幕右侧的方向键进行子菜单的选择,进入选中的子菜单。键盘中的常用键功能介绍:【确定】为确认键,【取消】为退到上一级目录键。地址设置和设置菜单需要输入密码,默认密码:1111。 | |||
[[文件:J-D-AC(DC36V_0.25kVA)-01Q 壁挂250W应急照明集中电源 图7-2.jpg|400px]] | |||
图7-2 | |||
==== 7.3.1 地址设置 ==== | |||
进入地址设置选项菜单,在此菜单中可以修改当前集中电源的地址号,地址范围1-99,左右方向键选择地址号,点击【确定】键后设置成功,如图7-3所示。 | |||
[[文件:J-D-AC(DC36V_0.25kVA)-01Q 壁挂250W应急照明集中电源 图7-3.jpg|400px]] | |||
图7-3 | |||
==== 7.3.2 查询菜单 ==== | |||
进入查询菜单后,如图7-4.A、7-4.B所示,使用上下键选择数字【1】进入“查询注册信息”选项,屏幕会列出当前集中电源登记注册的灯具类型和对应个数;使用上下键选择数字【2】进入“查询软件版本”选项,屏幕会列出当前集中电源软件版本信息;使用上下键选择数字【3】进入“查询故障信息”会列出当前发生的故障信息;使用上下键选择数字【4】进入“查询调试信息”可以查看调试数据。 | |||
[[文件:J-D-AC(DC36V_0.25kVA)-01Q 壁挂250W应急照明集中电源 图7-4.A.jpg|400px]] | |||
图7-4.A | |||
[[文件:J-D-AC(DC36V_0.25kVA)-01Q 壁挂250W应急照明集中电源 图7-4.B.jpg|400px]] | |||
图7-4.B | |||
==== 7.3.3 设置操作 ==== | |||
进入设置菜单后,如图7-5.A、7-5.B所示,在设置操作项中可以进行如下操作:自动登记,电源参数配置,通讯配置,回路校准。 | |||
操作自动登记时,集中电源可以自动登记指定回路的灯具; | |||
操作电源参数配置时,集中电源可以配置电源参数模式; | |||
操作通讯配置时,集中电源可以设置回路波特率、CAN波特率、点巡检、直流模式; | |||
操作回路校准模式,校准回路电流。 | |||
[[文件:J-D-AC(DC36V_0.25kVA)-01Q 壁挂250W应急照明集中电源 图7-5.A.jpg|400px]] | |||
图7-5.A | |||
[[文件:J-D-AC(DC36V_0.25kVA)-01Q 壁挂250W应急照明集中电源 图7-5.B.jpg|400px]] | |||
图7-5.B | |||
== 第八章 故障、异常信息处理 == | |||
=== 一般性故障处理情况表 === | |||
{| class="wikitable" | |||
|- | |||
! 故障现象 | |||
! 故障分析 | |||
! 解决方法 | |||
|- | |||
| 应急放电时间过短 | |||
| 电池未充满或电池性能降低 | |||
| 充电24小时后再次进行试验,试验后,放电时间依然过短,建议更换相同规格型号的铅酸蓄电池。 | |||
|- | |||
| 设备不进入应急工作状态 | |||
| 其它原因 | |||
| 联系当地经销商 | |||
|- | |||
| 输出回路保险一上电就烧掉 | |||
| 输出存在短路或过载现象 | |||
| 1、用万用表测量输出两端是否短路,检查输出回路;<br>2、检查输出负载是否过载,减少回路负载; | |||
|- | |||
| 市电状态下无输出电压 | |||
| 输出保险烧毁 | |||
| 更换同型号保险 | |||
|- | |||
| 市电状态下无输出电压 | |||
| 开关电源故障 | |||
| 联系当地经销商 | |||
|- | |||
| 市电状态下无输出电压 | |||
| 连接线虚接 | |||
| 紧固连接线 | |||
|- | |||
| 应急状态下无输出电压 | |||
| 输出保险烧毁 | |||
| 更换同型号保险减轻负载 | |||
|- | |||
| 应急状态下无输出电压 | |||
| 连线虚接 | |||
| 紧固连接线 | |||
|- | |||
| 电池故障 | |||
| 检查充电线路是否接触良好 | |||
| 紧固各接触点 | |||
|- | |||
| 电池故障 | |||
| 电池线接触不牢靠或已断裂 | |||
| 固定连接线或换线 | |||
|- | |||
| 电池电压异常 | |||
| 电池损坏或电池总电压低 | |||
| 需更换铅酸蓄电池 | |||
|- | |||
| 电池电压异常 | |||
| 开关电源损坏 | |||
| 联系当地经销商 | |||
|- | |||
| 电池电压异常 | |||
| 主板故障 | |||
| 更换主板 | |||
|- | |||
| 操作面板按键不工作 | |||
| 操作面板故障 | |||
| 联系当地经销商 | |||
|} | |||
== 第九章 保养维修 == | |||
=== 9.1 维护保养注意事项 === | |||
(1) 维护人员必须按照定期检查的方法,对设备进行维护; | |||
(2) 除受过专业培训的维护维修人员外,严禁其他人触摸集中电源内部; | |||
(3) 进行维护前,必须切断设备的所有电源,切断电源后的短时间内,电容器上仍积存有高电压,建议静置30秒以后,再进行操作; | |||
(4) 不能直接触碰PCB板上的元器件,否则容易静电损坏本设备; | |||
(5) 维修完毕后,必须确认所有螺丝均已锁紧,所有线端都已复原; | |||
(6) 每六个月必须进行一次定期检查; | |||
=== 9.2 定期检查 === | |||
为了防止故障发生,确保其长时间高性能稳定运行,用户应定期(半年)进行检查维护一次(维护情况应记录存档),其内容如下表所示: | |||
{| class="wikitable" | |||
|- | |||
! 检查项目 | |||
! 检查内容 | |||
! 检查方法 | |||
! 检测标准 | |||
|- | |||
| 工作环境 | |||
| 温度/湿度 | |||
| 温度计/湿度计 | |||
| 温度在-10℃~+55℃<br>≤95%(40±2℃无凝露) | |||
|- | |||
| 外观及零部件 | |||
| 是否有异常震动、异常声音<br>螺丝是否松动<br>是否有变形、破损<br>是否有污渍及粉尘 | |||
| 目测 | |||
| 无异常 | |||
|- | |||
| 电源电压 | |||
| 设备电源电压是否正常 | |||
| 万用表测量 | |||
| 满足额定输入电压 | |||
|- | |||
| 连接导线 | |||
| 是否变形、污损、过热变色 | |||
| 目测 | |||
| 无异常 | |||
|- | |||
| 开关电源 | |||
| 是否有烧伤、破损 | |||
| 目测 | |||
| 无异常 | |||
|- | |||
| 插接件 | |||
| 是否松动、变形、破损 | |||
| 目测 | |||
| 无异常 | |||
|- | |||
| 线路板 | |||
| 是否变色、变形、有污渍 | |||
| 目测 | |||
| 无异常 | |||
|- | |||
| 液晶显示 | |||
| 操作面板的LED灯是否正常<br>按键操作是否正常<br>显示屏亮度、显示是否正常 | |||
| 目测 | |||
| 无异常 | |||
|- | |||
| 铅酸蓄电池 | |||
| 是否漏液、鼓胀、破损 | |||
| 目测 | |||
| 无异常 | |||
|} | |||
[[Category:应急照明与智能疏散指示系统]] | |||
2025年11月17日 (一) 10:29的最新版本

参考资料
文件:J-D-AC(DC36V 0.25kVA)-01Q 使用说明书 ID1118.pdf
检验报告
文件:J-D-AC(DC36V/0.25kVA)-01Q 检验报告.pdf
认证证书
文件:J-D-AC(DC36V 0.25kVA)-01Q 认证证书 ID1066.pdf
高清图片
文件:J-D-AC DC36V 0.25kVA -01Q高清图片.zip
第一章 产品概述
J-D-AC(DC36V/0.25kVA)-01Q、J-D-AC(DC36V/0.45kVA)-01Q、J-D-AC(DC36V/0.6kVA)-01Q、J-D-AC(DC36V/1.0kVA)-01Q 壁挂型应急照明集中电源是应急照明和疏散指示系统的重要组成部分。为现场消防应急灯具提供电源,将应急疏散控制器的各种控制指令转发给现场消防应急灯具去执行,同时将现场消防应急灯具的工作状态实时转发上报给应急照明控制器进行显示和分析判断。是现场消防应急灯具和应急照明控制器之间的桥梁和纽带。该系统主要应用于医院、商场、写字楼、电影院、地下停车场等场所。该产品执行标准为GB 17945-2024《消防应急照明和疏散指示系统》。
1.1 特点
1. 总线通讯方式,共2条回路,8个支路,每条回路支持252个灯具地址;
2. 集中电源具备IP65的防护等级;
3. 全新的系统架构,保证了良好的系统扩展和兼容性能;
4. 内置微处理器,采用SMT表面贴装工艺;
5. 液晶显示的人机交互界面,显示明确、操作简单;
6. 回路输出DC36V安全工作电压;
第二章 应急照明集中电源的组成
2.1 应急照明集中电源正面外观图
J-D-AC(DC36V/0.25kVA)-01Q、J-D-AC(DC36V/0.45kVA)-01Q、J-D-AC(DC36V/0.6kVA)-01Q、J-D-AC(DC36V/1.0kVA)-01Q 应急照明集中电源包括:液晶板、铅酸蓄电池、开关电源、机箱等。
J-D-AC(DC36V/0.25kVA)-01Q 正面外观图
J-D-AC(DC36V/0.45kVA)-01Q 正面外观图
J-D-AC(DC36V/0.6kVA)-01Q 正面外观图
J-D-AC(DC36V/1.0kVA)-01Q 正面外观图
2.2 外形尺寸及结构介绍
单位(mm)
J-D-AC(DC36V/0.25kVA)-01Q 外形尺寸示意图
J-D-AC(DC36V/0.45kVA)-01Q 外形尺寸示意图
J-D-AC(DC36V/0.6kVA)-01Q 外形尺寸示意图
J-D-AC(DC36V/1.0kVA)-01Q 外形尺寸示意图
内部结构图,仅以 J-D-AC(DC36V/1.0kVA)-01Q 示例
2.3 型号组成
仅以J-D-AC(DC36V/1.0kVA)-01Q示例
2.4 接线端子功能说明
| 接线端子 | 功能说明 |
|---|---|
| 主电输入L、N、PE | 开关电源AC220V输入端子 |
| 市电检测L-1、N-1 | 接市电交流AC220V |
| 回路输出 | 2条回路,8个支路输出(每条回路对应4个支路),用于连接编址型集中电源集中控制型灯具。推荐使用≥ZR-RVS-2*2.5mm²双绞线连接集中控制型灯具。 |
| A/H、B/L端子 | 回路板跳线到CAN通讯(参考2.5跳线说明),用于集中电源与J-C-T-PS01等应急照明控制器通讯,连接A/H、B/L端子接线。CAN通讯距离≤1000米;推荐使用ZR-RVS-2*1.0mm²~1.5mm²双绞线。 |
| A/H、B/L端子 | 回路板跳线到485通讯(参考2.5跳线说明),用于集中电源与J-C-11S80B、J-C-11S80G、J-C-11S80T等应急照明控制器通讯,连接A/H、B/L端子接线。RS485通讯距离≤1000米,推荐使用ZR-RVS-2*1.0mm²~1.5mm²的双绞线。 |
| 干接点输入 | 短路该端子,系统进入应急状态。端子接入DC24V(+/-),系统进入应急状态,区分正负极。默认干接点输入。 |
| 应急输出端子 | 跳线帽在常开端:监视状态,触点断开;应急状态,触点闭合。跳线帽在常闭端:监视状态,触点闭合;应急状态,触点断开。 |
接线端子示意图:
J-D-AC(DC36V/0.25kVA)-01Q、J-D-AC(DC36V/0.45kVA)-01Q 接线端子示意图基本一致,仅以J-D-AC(DC36V/0.25kVA)-01Q示例
J-D-AC(DC36V/0.25kVA)-01Q 接线端子示意图
J-D-AC(DC36V/0.6kVA)-01Q、J-D-AC(DC36V/1.0kVA)-01Q接线端子示意图基本一致,仅以J-D-AC(DC36V/1.0kVA)-01Q示例
J-D-AC(DC36V/1.0kVA)-01Q接线端子示意图
2.5 电源内部跳线说明
| 跳线名称 | 功能说明 |
|---|---|
| CAN/RS485 | 选择设置两路通讯端子为CAN通讯或RS485通讯,需要同时匹配设置两个跳线帽。出厂默认RS485通讯。 |
| 终端电阻120R | 切换通讯端子120Ω终端匹配电阻,出厂默认0Ω电阻。 |
| 应急输出状态(常开/常闭) | 切换应急输出端子为常开或常闭,出厂默认常开。 |
CAN/RS485、终端电阻120R跳线说明示意图:
应急常开/常闭跳线示意图(仅以J-D-AC(DC36V/1.0kVA)-01Q示例):
第三章 产品功能
协议应急功能
发生火灾时,应急照明控制器通过协议方式获得火灾报警探测器探测到火源发生点及烟雾弥漫方向,计算逃生路线,通过集中电源将疏散照明指令下发给现场消防应急灯具,灯具在收到指令后进入应急工作状态,如频闪、变向、开灯等工作实时指示最佳、最安全的逃生路线。应急时,“自动应急”或“手动应急”指示灯红色常亮。
干接点应急,火灾报警控制器在火灾发生后通过模块为该节点提供一个无源或24V有源信号,触发集中电源进入到应急状态。
故障报警
故障时,“故障”指示灯黄色常亮,并有故障声响,显示屏自动切换到故障显示状态,显示相关故障信息。
电源状态监视
在正常监视状态时,主控单元实时监测电源状态,并将检测到的电源数值实时显示在集中电源液晶屏上。
第四章 技术参数
| 型号 产品特性 |
技术参数 | |||
|---|---|---|---|---|
| J-D-AC(DC36V/0.25kVA)-01Q | J-D-AC(DC36V/0.45kVA)-01Q | J-D-AC(DC36V/0.6kVA)-01Q | J-D-AC(DC36V/1.0kVA)-01Q | |
| 工作温度 | -10℃~+55℃ | |||
| 贮存温度 | -20℃~+65℃ | |||
| 相对湿度 | ≤95%(40±2℃无凝露) | |||
| 供电主电 | AC220V(±20%,50Hz) | |||
| 蓄电池种类 | 铅酸蓄电池 | |||
| 蓄电池容量 | 12V/55Ah,1节 | 12V/100Ah,1节 | 12V/60Ah,2节 | 12V/100Ah,2节 |
| 蓄电池型号 | 6-GFM-55 | 6-GFM-100 | 6-GFM-60 | 6-GFM-100 |
| 额定输出功率 | 250W | 450W | 600W | 1000W |
| 额定输出电压 | DC36V | |||
| 额定输入电流 | 约2.5A | 约4A | 约6A | 约11A |
| 额定输出电流 | 6A(单回路) | |||
| 系统容量 | 2条回路,8个支路,共252×2个灯具地址,1~4支路对应1回路编址范围1~252,5~8支路对应2回路编址范围1~252 | |||
| 外壳材质/防护等级 | 金属/IP65 | |||
| 安装方式 | 壁挂式 | |||
| 进线方式 | 箱体下进线 | |||
| 外形尺寸(不含挂耳尺寸) | 328mm×152mm×500mm | 420mm×188mm×520mm | 420mm×184mm×780mm | 500mm×184mm×780mm |
| 执行标准 | GB 17945-2024 《消防应急照明和疏散指示系统》 | |||
第五章 安装调试步骤
5.1 安装前检查
开箱后取出应急照明集中电源,检查以下几项,如果有损坏或异常情况,请立即致电当地经销商。
(1) 检查设备的铭牌并确认与您所订购的产品规格一致;
(2) 检查设备液晶屏是否完好、无破损;
(3) 确认包装箱中有钥匙、说明书及保险等随机配件;
(4) 确认集中电源运输过程中无任何损坏(柜体变形、导线磨破、线端脱落、接头或螺丝松动、电池外观是否破损、电池漏液、电池变形等)。
5.2 安装环境及要求
禁止将应急照明集中电源安装在下列任何环境中。
(1) 请安装在远离高温、腐蚀、火源、斜坡、雨淋之地;
(2) 请安装在远离金属粉末、尘埃、油、水的地方;
(3) 请安装在远离电磁辐射源的地方;
(4) 请安装在没有振动的场所;
(5) 使用场所:室内。
5.3 搬运注意事项
(1) 设备在搬运过程中要轻搬轻放,严禁重放摔倒;
(2) 设备在搬运过程中严禁与其他硬物磕碰,以免损坏设备;
(3) 设备在搬运过程中禁止硬物顶在前门面板上,防止液晶屏损坏。
5.4 安装空间要求
(1) 设备上部与墙或任何物件距离最少应有60cm的空间;
(2) 机器正面最少要求60cm的空间,设备的前面必需有充足的检修空间;
(3) 设备的顶部不可放置任何物件。
5.5 电池安装要求
(1) 电池放入机箱前,先预安装电池线,电池正极接线柱接红线,负极接线柱接黑线(电池预装时,应避免电池正、负极短路,造成电池或人员的损伤);
(2) 电池线接线端子如图5-1示(仅以J-D-AC(DC36V/1.0kVA)-01Q为例),统一甩向右侧,拧紧固定螺钉后,盖上保护端帽;
(3) 电池安装时,注意电池端子一端靠近箱门一侧,安装电池固定板,固定电池,电池线另一端参考电池接线示意图5-2,连接电源备电端子和温度检测端子。
(4) 600W和1000W应急照明集中电源两节电池串联线接线时,黑色保护端帽一端连接电池2负极(上面电池),红色保护端帽一端连接电池1正极(下面电池)。
注意:电池正负极严禁接反,否则会发生短路危险。
图5-1 电池安装示意图
图5-2 电池接线示意图
5.6 使用注意事项
(1) 请按照说明书5.5要求正确安装电池并连接电池线;
(2) 禁止开机状态下,连接回路线和CAN通讯信号线;
(3) 检查电池线、回路线、通讯信号线连接正常后,再插220V主电,依次打开主电开关、备电开关。
(4) 电池正负极严禁接反,否则会发生短路危险。
5.7 蓄电池的更换
(1) 本设备使用的铅酸蓄电池建议根据实际使用情况及时更换;
(2) 在日常维护、或月/季度维护时,发现电池漏液、鼓包、破损时,应更及时换蓄电池;
(3) 蓄电池更换方法:打开机箱前面板,切断主电开关、备电开关,拆除电池固定支架,拧开电池正负极的固定螺钉,把原来电池组取出。再参考说明书5.5要求安装相同规格、型号的铅酸蓄电池,最后安装电池固定支架即可。
第六章 产品显示说明
6.1 正常监视状态
正常监视状态无任何声响:除“主电运行”绿色指示灯亮及充电指示灯在充电状态下红色指示灯亮外,其余所有指示灯不亮。液晶屏显示状态如图6-1、6-2、6-3、6-4,液晶屏循环显示主电电压、电池电压、充电电流、总功率、电源地址、1-8回路的电压电流显示、电池温度等。
注意:250W和450W只有1节电池,只显示电池1温度和电池1电压;600W和1000W各有2节电池,分别显示电池1温度、电池1电压、电池2温度、电池2电压。
图6-1
图6-2
图6-3
图6-4
6.2 集中电源故障状态
集中电源报故障时,发出故障声响,显示故障类型,根据面板上显示的故障种类,找专业人员处理。故障排除后,故障显示和声响可自动消失。
6.3 集中电源报应急
集中电源报应急发出应急声响,显示应急类型。
第七章 集中电源操作
7.1 产品操作显示区
产品操作显示区由显示屏、状态指示灯及操作按键组成,中间区域是显示屏,显示屏上侧是状态指示灯,最右侧区域是操作按键,如图7-1所示。
图7-1
面板指示灯功能描述:
| 指示灯 | 状态说明 |
|---|---|
| 主电运行指示灯 | 主电运行时,主电运行指示灯绿灯常亮 |
| 充电指示灯 | 当电源开始充电时,充电指示灯红灯常亮 |
| 故障指示灯 | 当系统中报出故障信息时,故障指示灯黄灯常亮 |
| 自动应急指示灯 | 当系统进入自动应急,自动应急指示灯红灯常亮 |
| 手动应急指示灯 | 系统进入手动应急,手动应急指示灯红灯常亮 |
面板按键功能描述:
| 按键 | 操作说明 |
|---|---|
| 测试 | 按下后,系统进入应急状态,抬起后,系统自动退出应急状态。 |
| 取消 | 返回上一层菜单 |
| 功能 | 菜单键 |
| 消音 | 当有故障信息或应急时,蜂鸣器响。按下消音按键,蜂鸣器消音。 |
| 确定 | 对输入的数据和功能进行确认。 |
| 上下箭头 | 选项切换及翻页。 |
| 左右箭头 | 输入位置切换、退格。 |
7.2 菜单拓扑图
7.3 菜单操作
集中电源显示首页如图6-1所示。当无事件时,显示屏上显示当前工作实时参数信息。
在显示屏右侧的按键盘,键入【功能】,显示窗口出现“主菜单”对话框,包括地址设置、查询菜单、设置菜单三个功能选项,如图7-2所示。可用屏幕右侧的方向键进行子菜单的选择,进入选中的子菜单。键盘中的常用键功能介绍:【确定】为确认键,【取消】为退到上一级目录键。地址设置和设置菜单需要输入密码,默认密码:1111。
图7-2
7.3.1 地址设置
进入地址设置选项菜单,在此菜单中可以修改当前集中电源的地址号,地址范围1-99,左右方向键选择地址号,点击【确定】键后设置成功,如图7-3所示。
图7-3
7.3.2 查询菜单
进入查询菜单后,如图7-4.A、7-4.B所示,使用上下键选择数字【1】进入“查询注册信息”选项,屏幕会列出当前集中电源登记注册的灯具类型和对应个数;使用上下键选择数字【2】进入“查询软件版本”选项,屏幕会列出当前集中电源软件版本信息;使用上下键选择数字【3】进入“查询故障信息”会列出当前发生的故障信息;使用上下键选择数字【4】进入“查询调试信息”可以查看调试数据。
图7-4.A
图7-4.B
7.3.3 设置操作
进入设置菜单后,如图7-5.A、7-5.B所示,在设置操作项中可以进行如下操作:自动登记,电源参数配置,通讯配置,回路校准。
操作自动登记时,集中电源可以自动登记指定回路的灯具;
操作电源参数配置时,集中电源可以配置电源参数模式;
操作通讯配置时,集中电源可以设置回路波特率、CAN波特率、点巡检、直流模式;
操作回路校准模式,校准回路电流。
图7-5.A
图7-5.B
第八章 故障、异常信息处理
一般性故障处理情况表
| 故障现象 | 故障分析 | 解决方法 |
|---|---|---|
| 应急放电时间过短 | 电池未充满或电池性能降低 | 充电24小时后再次进行试验,试验后,放电时间依然过短,建议更换相同规格型号的铅酸蓄电池。 |
| 设备不进入应急工作状态 | 其它原因 | 联系当地经销商 |
| 输出回路保险一上电就烧掉 | 输出存在短路或过载现象 | 1、用万用表测量输出两端是否短路,检查输出回路; 2、检查输出负载是否过载,减少回路负载; |
| 市电状态下无输出电压 | 输出保险烧毁 | 更换同型号保险 |
| 市电状态下无输出电压 | 开关电源故障 | 联系当地经销商 |
| 市电状态下无输出电压 | 连接线虚接 | 紧固连接线 |
| 应急状态下无输出电压 | 输出保险烧毁 | 更换同型号保险减轻负载 |
| 应急状态下无输出电压 | 连线虚接 | 紧固连接线 |
| 电池故障 | 检查充电线路是否接触良好 | 紧固各接触点 |
| 电池故障 | 电池线接触不牢靠或已断裂 | 固定连接线或换线 |
| 电池电压异常 | 电池损坏或电池总电压低 | 需更换铅酸蓄电池 |
| 电池电压异常 | 开关电源损坏 | 联系当地经销商 |
| 电池电压异常 | 主板故障 | 更换主板 |
| 操作面板按键不工作 | 操作面板故障 | 联系当地经销商 |
第九章 保养维修
9.1 维护保养注意事项
(1) 维护人员必须按照定期检查的方法,对设备进行维护;
(2) 除受过专业培训的维护维修人员外,严禁其他人触摸集中电源内部;
(3) 进行维护前,必须切断设备的所有电源,切断电源后的短时间内,电容器上仍积存有高电压,建议静置30秒以后,再进行操作;
(4) 不能直接触碰PCB板上的元器件,否则容易静电损坏本设备;
(5) 维修完毕后,必须确认所有螺丝均已锁紧,所有线端都已复原;
(6) 每六个月必须进行一次定期检查;
9.2 定期检查
为了防止故障发生,确保其长时间高性能稳定运行,用户应定期(半年)进行检查维护一次(维护情况应记录存档),其内容如下表所示:
| 检查项目 | 检查内容 | 检查方法 | 检测标准 |
|---|---|---|---|
| 工作环境 | 温度/湿度 | 温度计/湿度计 | 温度在-10℃~+55℃ ≤95%(40±2℃无凝露) |
| 外观及零部件 | 是否有异常震动、异常声音 螺丝是否松动 是否有变形、破损 是否有污渍及粉尘 |
目测 | 无异常 |
| 电源电压 | 设备电源电压是否正常 | 万用表测量 | 满足额定输入电压 |
| 连接导线 | 是否变形、污损、过热变色 | 目测 | 无异常 |
| 开关电源 | 是否有烧伤、破损 | 目测 | 无异常 |
| 插接件 | 是否松动、变形、破损 | 目测 | 无异常 |
| 线路板 | 是否变色、变形、有污渍 | 目测 | 无异常 |
| 液晶显示 | 操作面板的LED灯是否正常 按键操作是否正常 显示屏亮度、显示是否正常 |
目测 | 无异常 |
| 铅酸蓄电池 | 是否漏液、鼓胀、破损 | 目测 | 无异常 |
