BH30I-300A/5A电流互感器

参考资料
高清图片
1.使用范围
BH-0.66Ⅰ型电流互感器主要用于户内,供额定电压为0.66kV及以下,额定频率为50/60Hz的交流电路中作为电流、电能测量或继电保护用。
2.引用标准
GB20840.1-2010 互感器第一部分 通用技术要求
GB20840.2-2014 电流互感器的补充技术要求
GB/T22071.1-2018 互感器试验导则 第1部分:电流互感器
JBT5356-2002 电流互感器试验导则
3.型号及含义
4.使用环境条件
4.1 安装环境:户内。
4.2 环境温度:-5℃~40℃。
4.3 环境湿度:相对湿度不大于80%。
4.4 海拔高度:≤1000m。
4.5 大气条件:无严重污秽。
5.主要参数
5.1 额定一次电流:300A。
5.2 额定二次电流:5A。
5.3 准确度等级:0.5级。
5.4 二次负荷:额定负荷:5VA,下限负荷:3.75VA 功率因数0.8。
5.5 穿心匝数:1匝。
5.6 额定频率:50/60Hz。
6. 技术指标
6.1 工频耐压
二次绕组与接地端子之间施加3kV(方均根值)工频试验电压,历时1min,无闪络或击穿。
6.2 匝间绝缘要求
二次绕组开路,对一次绕组施加频率为40Hz~60Hz的实际正弦波电流,其方均根值等于额定一次电流(或额定扩大一次电流,若果有),持续60s。
如果在达到额定一次电流(或额定扩大一次电流)之前,已经得到4.5kV(峰值)的试验电压,则施加的电流应受到限制。
如果最大一次电流下,未到达4.5kV(峰值)的试验电压,则所达到的电压应认定为是试验电压。试验后匝间绝缘不应损坏,准确度仍能满足要求。
6.3 极性检查
测量用电流互感器的绕组极性规定为减极性,当一次电流从绕组的极性端流入时,二次电流从二次绕组的极性端流出,即标有P1、S1的端子在同一瞬间应具有同一极性。
6.4 准确度测试
一般情况下试验环境温度为5℃~40℃,相对湿度不大于95%。
在额定频率、额定功率因数及二次额定负荷和下限负荷之间的任意值时电流互感器各检测点的误差(比值差和相位差)不超过下表限值。
| 准确级 | 下列额定电流百分数下的比值差 (土 %) | 下列额定电流百分数下的相位差 (土 %) | ||||||
|---|---|---|---|---|---|---|---|---|
| 5 | 20 | 100 | 120 | 5 | 20 | 100 | 120 | |
| 0.5 | 1.5 | 0.75 | 0.5 | 0.5 | 90′ | 45′ | 30′ | 30′ |
6.5 温升试验
电流互感器的安装状态应代表其运行安装情况,电流互感器的一次电流等于额定连续热电流,且带功率因数为0.8的额定负荷,互感器的温度达到稳定状态。绕组温升≤60K,绕组出头温升≤50K。
7. 结构要求
7.1 外壳材质为PC阻燃材料,外壳颜色为RAL7302,安装配件中的绝缘垫块颜色应与外壳一致。
7.2 电流互感器为塑壳结构,外观应平整、光洁、无缺损、裂纹等机械损伤, 无严重划伤,无大面积脏污,外壳合缝处无明显缝隙。
7.3 外壳合紧采用自攻丝锁紧,闭合良好,无明显缝隙和变形。
7.4 外壳上的P1、P2、S1、S2标志应清晰。
7.5 螺栓和垫片齐全,接线螺栓的拧紧程度应保证运输后不松动;垫片朝向应便于客户接线,方向应一致。
7.6 安装配件包应无破损,袋内配件不缺少(包装袋仅供参考)。
7.7 内部结构件无晃动。
7.8 端子罩应有足够机械强度,且可以进行钳封。
7.9 铅封螺丝长度应适中,紧固后端子罩不晃动。
8.铭牌
8.1 铭牌采用激光直接雕刻在外壳本体上,参数正确,字迹清晰。
8.2 铭牌示意图:
备注:1.铭牌中的参数按要求参数正确填写。
2.除罗马数字(Ⅰ)为宋体外,其他字体为黑体字。
3.BH-0.6630Ⅰ电流互感器方框中的窗口宽度和类别应根据外壳尺寸填写。
4.出厂编号为8位数,其中前三位为栢宜ED号,后五位为流水号,流水号应无重复。
5.出厂日期如无特殊要求则按实际生产日期,如有特殊要求则按特殊要求。
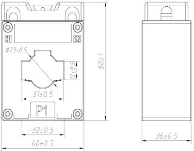
9.外形尺寸图
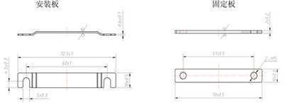
10.安装附件
11.安装示意图
12.包装
12.1 互感器的包装应保证产品在整个储运期间不致损坏。
12.2 互感器包装采用多只互感器集中包装在一个包装箱内,单只互感器采用小塑料袋包装。当采用多层包装时,层与层之间应加隔板进行防护。每箱数量一致,尾箱做好标识。
12.3 互感器包装时一箱内应尽量放置连续流水号的产品。
12.4 互感器的安装配件包与互感器分开包装,配件包集中包装在包装箱内,配件包装箱有明显标识和数量等信息。
12.5 每箱产品应在包装箱内放置一份说明书。
12.6 包装箱为空白,产品包装后在包装箱侧面左上角贴上标签(见示意图),应防止产品倒置。
12.7 当箱数较多时应采用托盘打包发货,在堆板时包装箱标签应放置在外侧,方便直接看到。当数量较少不采用托盘时包装箱应做好防护,防止运输过程中损坏产品和包装箱。
12.8 无托盘发货时,物流标签贴在包装箱密封胶带上面,位置在箱上中间位置(见示意图)。
12.9包装清单
| 序号 | 名称 | 数量 | 备注 |
|---|---|---|---|
| 1 | 产品说明书 | 1PCS/箱 | 放置在包装箱内 |
| 2 | 包装箱标签 | 1PCS/箱 | 包装箱侧面左上角 |
| 3 | 安装配件 | 1/pcs | 配件集中包装 |
| 4 | OQC检验报告 | 1set | 随货走 |
| 5 | 塑料缠绕薄膜 | 整板包裹 | |
| 6 | 物流标签 | 1 | 贴在托板货上 |