JBF5146A输入/输出模块

接线图
参考资料
文件:JBF ASM-JBF5146A 输入 输出模块使用说明书V1.2 20220716.pdf
检验报告
认证证书
高清图片
故障调试
1 概述
JBF5146A输入/输出模块(以下简称模块)是青鸟消防股份有限公司开发的可实现持续输出方式的控制模块。该模块主要用于消防联动设备的控制,并可接收联动设备动作后的应答信号从而判断被控设备是否动作,同时可对被控设备与模块的输入端和输出端连接线路状态进行监测。在使用过程中消防联动控制器发出命令,通过输入/输出模块启动或停止与该模块连接的外部设备,同时监测外部设备工作状态。
1.1 产品特点
- 内置微处理器。
- 采用SMT表面贴装工艺。
- 模块工作电压范围广,可在DC18-28V范围内正常工作。
- 通信采用二总线技术,无极性要求。
- 施工中建议使用双绞线,导线截面积不小于1.0mm2。
- 回路信号处理电路与输入输出检测信号处理电路实现电气隔离,模块稳定性高,抗干扰能力强。
- 电子编码方式,可通过专用电子编码器编址。
- 模块采用易于客户施工、维护的插拔式结构,先安装底座,线路检查完成后再装主体进行开通调试。
- 具备完善的故障检测功能(包括输入、输出端的断路、短路检测)。
- 内置电容式磷酸铁锂可循环充放电电池,电池可循环充放电300次,使用寿命5年。
1.2 适用范围
- 适用于高层住宅、办公楼、图书馆、影剧院、邮政大楼等公共场所。
- 应用设计遵照国家标准GB50116-2013《火灾自动报警系统设计规范》。
1.3 型号组成
2 工作原理
模块内嵌微处理器,微处理器实现与消防联动控制器通讯、输出控制、输入信号状态判断、输入和输出线路故障检测、状态指示灯控制。模块占用一个编码地址,编址范围 1-200。模块接收消防联动控制器的启动命令,继电器动作,输出最大能量:脉冲输出 DC24V/60mA/120s,然后持续输出DC12V/16mA/4h,并点亮对应的“输出动作”指示灯;在接收到外接设备传来的应答信号后,将信息传送到消防联动控制器并点亮“输入动作”指示灯。
3 性能参数
环境特性
| 工作温度 | -10~+55℃ |
| 贮存温度 | -20~+55℃ |
| 相对湿度 | ≤95%(无凝露) |
防爆特性
防爆标志 不涉及
电气特性
| 工作电压 | DC18V-28V,调制型,控制器提供 |
| 监视电流 | ≤0.4mA(DC24V) |
| 报警电流(总线) | ≤0.45mA(DC24V) |
| 输出容量 | 脉冲输出 DC24V/60mA/120s,然后持续输出 DC12V/16mA/4h |
| 确认灯 | 监视状态:“输入动作”灯红色闪亮,“输出动作”灯红色闪亮 动作状态:“输入动作”灯红色常亮,“输出动作”灯红色常亮 故障状态:“输入动作”灯不亮,“输出动作”灯不亮 |
通讯特性
| 线制 | 二线制(无极性) |
| 编址范围 | 1~200 |
| 编址方式 | 专用电子编码器 |
| 最远传输距离 | 3000m/RVS2*1.0 mm² |
兼容性
JBF-11SF 系列控制器、 JBF50 系列小点数控制器和 JBF50 系列气体灭火控制器等
机械特性
| 外观 | PANTONE Warm Gray 1 C 米白色 |
| 外壳材质 | 塑料 |
| 产品质量 | 138g |
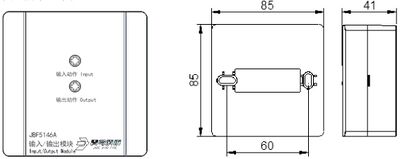
| 外形尺寸 | L 85mm×W 85mm×H 41mm |
探测特性
保护面积 不涉及
认证特性
消防认证
执行标准
1) GB 16806-2006《消防联动控制系统》
4 安装调试
4.1 安装说明/步骤
- 模块采用明装方式。
- 布线施工后,通过预埋盒或使用膨胀螺栓将底座固定在墙上(使用 M4 螺钉),安装孔距为 60mm。
如图 1 所示(单位 mm)。
图 1 外形及安装尺寸图
- 回路总线采用不小于 2×1.0mm2 双绞线。
- 安装之前用编码器对其写入相应地址码,此编码应与工程软件中的编码相一致。
- 将总线接在 L1、L2 端子上,无极性。
- 部件只能在布线检查后、调试之前安装,以防止因不恰当安装作业造成损失。
- 编码型总线输入/输出模块端子图例如图 2 所示:
图2端子图
L1(端子4)、L2(端子5):接回路总线,无极性;
输入功能:
AS+(端子9)、AS-(端子10):接应答(无源触点)。
连接在AS+和AS-上的监视设备的动作端必须并联10KΩ终端电阻;
输出功能:
VO+(端子6)、VO-(端子8):接被控设备,模块启动后VO+(端子6)和VO-(端子8)输出最大能量:脉冲输出DC24V/60mA/120s,然后持续输出DC12V/16mA/4h,见图3。
图3接线示意图
4.2调试方法
首先使用电子编码器对模块进行编码。
模块安装好后操作控制器对其进行登记。
进入手动启停现场设备界面,输入要启动的模块回路及地址启动,模块“输出动作”指示灯变为红色常亮,被控设备动作,模块收到被控设备的无源反馈后“输入动作”指示灯变为红色常亮。
复位被控设备,模块恢复正常监视状态。
5 故障分析与排除
| 故障现象 | 原因分析 | 排除方法 | 备注 |
|---|---|---|---|
| 输入指示灯、输出 指示灯不亮,报故 障 | 接触不良 | 重新接线 | |
| 接线错误 | 按标签上的指示接线 | ||
| 漏接终端电阻 | 被控设备应答端或者输出端接入 10KΩ终端电阻 | ||
| 输出线路短路 | 确认输出线没有短路 | ||
| 电路元器件损坏 | 更换模块 | ||
| 断电重新编址或连 续编址编不上 | 模块内部电容电量未 释放尽 | 等待1分钟后重新编址 | |
| 上电后状态柱高或 报反馈 | 总线上有重码的探测 部件 | 拔掉该模块,看是否反馈部件还在 线,有的话,证明是因为重码反馈 | |
| 应答端短路或终端电 阻过小 | 确保输入线正确接入10KΩ电阻 | ||
| 应答端误接DC24V 电源 | 重新接线 | ||
| 不能登记 | 未编址 | 使用专用编码器对现场部件编址 | |
| 编码地址范围错误 | 编址范围1~200 |
6 保养、维护
- 定期进行输入和输出状态检测和继电器动作试验,建议每半年一次。
- 长期贮存的电池(超过3个月)须置于干燥、凉爽处。
- 为防止过放电的发生,电池应定期(注:6个月左右)充电,将其电压维持在3.25V至3.35V之间。
7 开箱及检查
打开包装后,本产品应该包括:
| 输入/输出模块(不含底座) |
| 产品使用说明书 |
如发现任意项有缺失或有损坏,请速与我们联系,我们将立即补全产品的缺失项,或者在确定是非人为因素造成的破损下,无条件的为客户更换新的产品。
8 注意事项、免责声明
- 在使用中,必须严格按照本说明书的描述进行安装与调试。
- 本公司保留对本说明书的最终解释权。
- 根据电池厂家提供的手册,5年后需要更换电池。

