
参考资料
高清图片
一、 安装说明:
本按钮专用于气体灭火控制系统,使用无极性两总线回路,将现场自身状态发送给气体灭火控制器,并显示系统当前的手自动状态。
1.取下 A 处固定螺丝,将盒体打开,见接线示意图。 2.按接线示意图接好回路总线。 3.将盒体扣合上,再将 A 处固定螺丝拧紧即可。
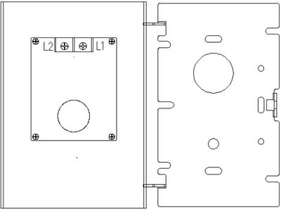
二、 接线示意图
1.本设备属于编址现场设备,采用无极性两总线回路,同一分区灭火分区可以接单个或多个手自动转换盒。 2.接线端子如接线示意图所示,采用 RVS1.5mm 双绞线连接到总线回路,对应 L1,L2 端子标识连接到无极性两总线回路上。
三、 使用说明:
1.使用编码器对设备进行编码,编址发范围 1-79, 安装示意图一路总线回路中最多可挂接 6 个手自动转换盒。 2.按接线示意图连接总线,使用气体灭火控制器对本按钮进行注册。 3.通过气体灭火控制器检查注册成功与否,及设备是否运行正常。 4.系统正常运行时,手自动转换盒无任何操作的情况下,显示的是系统当前运行状态,自动灯(绿色)亮,表示系统转换为自动运行状态,手动灯(红色)亮,表示系统转换为自动运行禁止状态。 5.在钥匙插孔中正确插入专用钥匙,逆时针拧动钥匙,手动灯(红色)亮,表示系统转换为手动运行状态,手动优先级最高,系统中有任意一个手自动转换盒钥匙拧到手动运行状态,整个系统在任何状态中均切换到手动运行状态。 6.当在钥匙插孔中正确插入专用钥匙,顺时针拧动钥匙,自动灯(绿色)亮,表示系统转换为自动运行状态。如系统中有其它手自动转换盒,其它手自动转换盒必须全部处于自动运行状态时上述切换操作才会有效,否则操作无效。
四、 技术参数:
额定电压 | DC(19-28)V |
---|---|
适用温度 | -10℃~+50℃ |
外形尺寸 | 130×92×44mm |
重量(g) |
五、 装箱清单:
品名 | 规格 | 数量 |
---|---|---|
手自动转换盒 | JBF5182 | 1 |
固定螺钉 | M3×6 | 1 |
说明书 | JBF5182.SM | 1 |
专用钥匙 | JBF5182.K | 1 |