JTG-Z-JBF4385-Ex紫外火焰探测器

接线图
参考资料
文件:JTG-Z-JBF4385-Ex 点型紫外火焰探测器使用说明书.pdf
认证证书
检验报告
高清图片
1 概述
JTG-Z-JBF4385-Ex 点型紫外火焰探测器(以下简称火焰探测器),使用了专门设计的日光盲型紫外传感器件,再通过内置的高速微处理器和先进的信号处理算法,能有效的区分出真实的火焰辐射与干扰源,提高报警速度的同时,极大程度的降低了环境因素对探测器的影响;探测器可多级灵敏度设置,满足不同场合的需求;优良的隔爆设计,满足各种恶劣环境使用。
1.1 产品特点
- 产品采用工业标准要求设计,性能稳定可靠。
- 核心电路采用SMT表面贴装工艺,可靠性高,一致性好。
- 三色指示灯可显示正常工作状态、报警及故障状态。
- 多级灵敏度可调。
- 采用智能算法,既可以实现快速报警,又可以降低误报率。
- 完善的故障模式,能够精准定位故障信息。
- 自动控制的除霜功能更好地抵抗窗口冷凝。(需订购时选配)
- 丰富的输出接口,满足各种应用场景。
- 外壳采用高强压铸铝,产品隔爆性好,防护等级达到IP67,抗粉尘污染、抗潮湿及抗腐蚀能力强等特点。
- 有关技术资料、图样和样机均经石油和化学工业电气产品防爆质量监督检验中心(PCEC)审查检验合格。
- 该火焰探测器具有优良的抗干扰能力,不受风雨、高温、高湿及自然人工光源等影响,可良好的工作于室内或室外等各种严酷的工业现场环境下。
1.2 适用范围
- 火焰探测器主要适用场所有:油库、酒库、交通隧道、飞机库、化工设备场所、液化气站等各种易燃、易爆工业领域中,及火灾萌发初期无阴燃阶段或较少阴燃阶段,直接产生明火为主的场所。
- 火焰探测器适用于含有Ⅱ类A、B、C级T1~T6组可燃气体或粉尘与空气形成的爆炸性混合物的1区、2区及21区、22区危险场所。
特别注意:该型产品不适用于电弧焊和产品响应的紫外波段辐射频发的场合中使用。
1.3 型号组成
2 工作原理
点型紫外火焰探测器是一种感光式火灾探测器,响应火焰辐射光谱中185nm-260nm紫外光(日光白)。产品依靠紫外传感器接收可燃物所发出的紫外光(一般发射紫外光的可燃物有碳氢化合物、氢气、硅烷、氢化物及金属类火等)来探测火焰燃烧。
3 性能参数
环境特性
工作温度 | -40~+75℃ |
贮存温度 | -40~+85℃ |
相对湿度 | ≤95%(无凝露) |
防爆特性
防爆标志 ExdIICT6Gb/ExtDA21IP67T80℃
电气特性
工作电压 | 额定工作电压:DC24V 工作电压范围:DC18~28V |
监视电流 | 17mA~27mA(DC24V) |
报警电流 | 28mA~40mA(DC24V) |
除霜电流 (选配功能) | 130mA~220mA(DC24V)*窗口除霜功能开启后* |
启动时间 | <1s |
确认灯 | 监视状态绿色闪亮,报警状态红色常亮,故障状态黄色常亮 |
通讯特性
输出形式 | 1)三组干节点输出(火警继电器、故障继电器和辅助继电器);继电器触点 容量 2A@30VDC。 2)RS485(Modbus 协议,详见《火焰探测器 RS485 应用手册》); 3)4-20mA 隔离输出; |
编址范围 | 不涉及 |
编址方式 | 非编址型 |
最远传输距离 | RS485 通讯 1000m,其他不涉及 |
兼容性
通过 JBF4137A 中继模块后,接入 JBF-11SF 系列及 JBF50XX 系列控制器
机械特性
外观 | RAL3003 宝石红 |
外壳材质 | 压铸铝 |
防护等级 | IP67 |
电气接口 | 3×M20×1.5mm |
产品质量 | 2.5kg(含安装架) |
外形尺寸 | L 133 mm×W 130 mm×H 182 mm;(不含安装架) |
探测特性
保护区域 | 详见 3.1 |
响应时间 | ≤5s |
报警阈值 | 低、中、高 3 级可调(出厂默认设置为中) 监视状态每次绿灯闪烁次数表示报警阈值级别 绿灯闪烁 1 次为低、2 次为中、3 次为高 (报警阈值低时探测探测性能最佳,但误报率会增加,报警阈值高时,反之) |
报警延时 | 0-30s 可调(出厂时设置为 0 秒) |
认证特性
消防认证、防爆认证
执行标准
1) | GB 12791-2006 《点型紫外火焰探测器》 |
2) | GB 3836.1-2010 《爆炸性环境第 1 部分设备通用要求》 |
3) | GB 3836.2-2010 《爆炸性环境第 2 部分:由隔爆外壳“d”保护的设备》 |
4) | GB12476.1-2013《可燃性粉尘环境用电气设备第1部分通用要求》 |
5) | GB12476.5-2013《可燃性粉尘环境用电气设备第5部分外壳保护型“tD”》 |
3.1保护区域
- 探测范围
视场范围≤120°;灵敏度等级:1级。
探测区域示意图(水平方向)
探测区域示意图(垂直方向)
- 探测距离
火源 | 最大探测距离 | |
---|---|---|
燃烧物 | 火源大小 | |
正庚烷 | 0.1m2(0.3m×0.3m) | 40m |
乙醇 | 0.1m2(0.3m×0.3m) | 30m |
甲醇 | 0.1m2(0.3m×0.3m) | 15m |
汽油 | 0.1m2(0.3m×0.3m) | 27m |
柴油 | 0.1m2(0.3m×0.3m) | 20m |
煤油 | 0.1m2(0.3m×0.3m) | 20m |
甲烷 | 0.5m(L)×0.2m(W) | 20m |
氢气 | 0.5m(L)×0.2m(W) | 25m |
氨气 | 0.5m(L)×0.2m(W) | 25m |
硅烷 | 0.5m(L)×0.2m(W) | 15m |
办公室用纸 | 0.1m2(0.3m×0.3m) | 15m |
4安装调试
4.1安装说明/步骤
警告:火焰探测器安装前,务必切断火焰探测器供电线路的电源。
注意:
1、现场安装时,按GB/T3836.15-2017标准要求、配用与环境相适应的已取得防爆合格证的电缆引入装置及防爆堵头,采用耐高温电缆。
2、火焰探测器的设置应参考《火灾自动报警设计规范》(GB50116)及其他相关规范标准执行。
3、所有连线均采用1.0mm2以上的电线,连接线末端剥去大约6mm的绝缘护套,连接到JTG-Z-JBF4385-Ex火焰探测器的接线端子上。
4、检查外部连接线是否开路、短路故障。
产品尺寸图
吸顶安装方式
壁挂安装方式
正视图及侧视图
图1 端子接线图
表1端子说明
序号 | 名称 | 描述 |
---|---|---|
1 | FIRNO | 火警继电器常开端,火焰探测器报火警时触点闭合 |
2 | FIRCOM | 火警继电器公共端 |
3 | FIRNC | 火警继电器常闭端,火焰探测器报火警时触点断开 |
4 | FLTNO | 故障继电器常开端,上电触点闭合,探测器发生故障时触点断开。若此时探测器报火警, 该触点保持断开状态不变 |
5 | FLTCOM | 故障继电器公共端 |
6 | FLTNC | 故障继电器常闭端,上电触点断开,探测器发生故障时触点闭合。若此时探测器报火警, 该触点保持闭合状态不变 |
7 | AUXNO | 辅助继电器常开端,火焰探测器报火警时触点闭合3 |
8 | AUXCOM | 辅助继电器公共端3 |
9 | AUXNC | 辅助继电器常闭端,火焰探测器报火警时触点断开3 |
10 | NC | 空引脚 |
11 | -24V | DC24V电源输入,无极性 |
12 | GND | DC24V电源输入,无极性 |
13 | L2 | 消防总线回路L2,无极性(此款为非编址型,无此功能) |
14 | L1 | 消防总线回路L1,无极性(此款为非编址型,无此功能) |
15 | NC | 空引脚 |
16 | 485_A | RS485总线A,RS485+ |
17 | 485_B | RS485总线B,RS485- |
18 | LP+ | 4-20mA电流环+ |
19 | LP- | 4-20mA电流环- |
注1:辅助继电器根据客户实际需求连接,可提供具有2A@30VDC触点容量的无源常开/常闭触点,外接其他设备或负载应不超过辅助继电器触点容量。
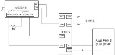
图2火焰探测器与火灾报警控制器JB-QB-JBF5010接线图
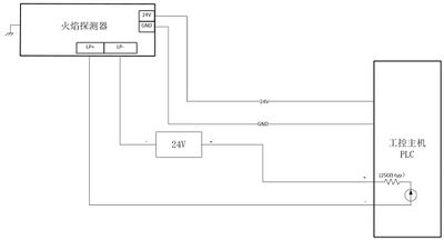
图3 火焰探测器与PLC工控机接线图
4.2 调试方法
- 与火灾报警控制器配接调试方法
1、使用电子编码器对JBF4137A中继模块进行编码。
2、按图2所示完成接线,操作火灾报警控制器对模块进行登记。
3、在火焰探测器窗口前晃动火源或模拟火源,火焰探测器报火警,控制器显示火警信息,火焰探测器工作正常。
4、复位火灾报警控制器,火焰探测器恢复正常监视状态。
- 与工控机PLC配接调试方法
1、按图3所示完成接线,通过工控机完成设置。
(故障:5mA±5%;正常:10mA±5%;报警:15mA±5%;)
2、在火焰探测器窗口前晃动火源或模拟火源,火焰探测器报火警,工控机显示火警信息,火焰探测器工作正常。
3、通过工控机切断火焰探测器DC24V电源2s,再重新上电,火焰探测器恢复正常监视状态。
5 故障分析与排除
故障现象 | 原因分析 | 排除方法 |
---|---|---|
巡检灯不亮,报故障 | 1.电源线未接通 | 检测并接通电源接线 |
2.接触不良 | 重新接线 | |
3.接线错误 | 按接线端子接线图检查并正确接线 | |
火焰探测器报警后无输出 信号 | 1.输出线连接不正确 | 检查输沿线,并按接线图正确接线 |
2.输出线断路或开路 | ||
火焰探测器上电后经常误 报 | 1.现场环境影响 | 排除周围环境干扰 |
2.灵敏度设置有问题 | 根据现场实际情况调整灵敏度 |
6 保养、维护
- 接地务必可靠。
- 经检验合格产品,不允许随意更换元器件或改变结构,以免影响防爆性能。
- 维修保养时,注意保护隔爆面,所有隔爆面不得有损坏或锈蚀。
- 严禁带电开盖。非专业人员不得随意安装、拆卸。
- 火焰探测器必须按照国家标准及其有关法规要求,进行定期测试和维护保养,每一年至少对探测器进行一次清洁处理,每月进行一次测试保养。
7 开箱及检查
打开包装后,本产品应该包括:
JTG-Z-JBF4385-Ex 点型紫外火焰探测器 | 1 台 |
产品使用说明书 | 1 份 |
安装支架 | 2 件 |
配件,其中含: 内六角圆柱头螺钉 M16×35 1 个:(用于安装支架与产品间连接) 内六角圆柱头螺钉 M10×16 2 个:(用于安装支架间的固定) 内六角平端紧定螺钉 M6×8 1 个:(用于安装支架间的固定) 弹性垫圈 16 1 个:(用于安装支架与产品间防松紧固) 平垫圈 16 1 个:(用于安装支架与产品间防松紧固) 10PIN 接线端子 1 个:(用于对外供电及输出) 9PIN 接线端子 1 个:(用于对外供电及输出) |
1 盒 |
如发现任意项有缺失或有损坏,请速与我们联系,我们将立即补全产品的缺失项,或者在确定是非人为因素造成的破损下,无条件的为客户更换新的产品。
8 注意事项、免责声明
- 辅助继电器根据客户实际需求连接,可提供具有 2A@30VDC 触点容量的无源常开/常闭触点,外接其他设备或负载应不超过辅助继电器触点容量。
- 防爆电缆引入装置及封堵件需自配,且防爆等级须满足 ExdIIIC T6 Gb/ExtDA21 IP67 T80℃要求。
- 在使用中,必须严格按照本说明书的描述进行安装与调试。
- 本公司保留对本说明书的最终解释权。