点型感温火灾探测器 GB 4716-2024
引用资料
标准状态
当前标准:GB 4716-2024
发布日期:2024-11-28
实施日期:2025-12-01
旧标准:GB 4716-2005
发布日期:2005-09-01
实施日期:2006-06-01
废止日期:2025-12-01
1 范围
本文件界定了点型感温火灾探测器(以下简称“探测器”)的术语和定义,规定了分类、要求、检验规则、标志和使用说明书要求,描述了相应试验方法。
本文件适用于工业与民用建筑中使用的点型感温火灾探测器产品的设计、制造和检验。
2 规范性引用文件
下列文件中的内容通过文中的规范性引用而构成本文件必不可少的条款。其中,注日期的引用文件,仅该日期对应的版本适用于本文件;不注日期的引用文件,其最新版本(包括所有的修改单)适用于本文件。
GB 4715 点型感烟火灾探测器
GB/T 9969 工业产品使用说明书 总则
GB 12978 消防电子产品检验规则
GB 15631 特种火灾探测器
GB/T 16838 消防电子产品环境试验方法及严酷等级
GB/T 17626.2 电磁兼容 试验和测量技术 静电放电抗扰度试验
GB/T 17626.3 电磁兼容 试验和测量技术 第3 部分:射频电磁场辐射抗扰度试验
GB/T 17626.4 电磁兼容 试验和测量技术 电快速瞬变脉冲群抗扰度试验
GB/T 17626.5 电磁兼容 试验和测量技术 浪涌(冲击)抗扰度试验
GB/T 17626.6 电磁兼容 试验和测量技术 射频场感应的传导骚扰抗扰度
3 术语和定义
下列术语和定义适用于本文件。
3.1
典型应用温度 typical application temperature
在正常监视状态情况下,点型感温火灾探测器能长期稳定运行的环境温度。
3.2
最高应用温度 maximum application temperature
在正常监视状态情况下,点型感温火灾探测器能承受的、短时间内稳定运行的环境温度。
3.3
动作温度 static response temperature 在以极其微小的升温速率升温情况下,点型感温火灾探测器能发出火灾报警信号时的温度。
3.4
可复位式探测器 resettable detector
在响应后和在引起响应的条件终止时,不更换任何组件即能从报警状态恢复到正常监视状态的探测器。
3.5
不可复位式探测器 non⁃resettable detector
在响应后不能恢复到正常监视状态的探测器。
4 分类
点型感温火灾探测器应符合表1 中划分的A1、A2、B、C、D、E、F 和G 中的一类或多类。可通过在上述类别符号的后面附加字母S 或R 的形式(如A1S、BR 等)标示S 型或R 型探测器。对于可现场设置类别的探测器,在其产品标志中用P 表示类别,并标出所有可设置的类别(如A1R、BR、BS 等),其当前设置类别应能清晰识别。
注1: S 型探测器即使对较高升温速率在达到最小动作温度前也不能发出火灾报警信号。
注2: R 型探测器具有差温特性,对于高升温速率,即使从低于典型应用温度以下开始升温也能满足响应时间要求。
表 1 探测器分类
| 探测器类别 | 典型应用温度℃ | 最高应用温度℃ | 动作温度下限值(≥)℃ | 动作温度上限值(≤)℃ |
|---|---|---|---|---|
| A1 | 25 | 50 | 54 | 65 |
| A2 | 25 | 50 | 54 | 70 |
| B | 40 | 65 | 69 | 85 |
| C | 55 | 80 | 84 | 100 |
| D | 70 | 95 | 99 | 115 |
| E | 85 | 110 | 114 | 130 |
| F | 100 | 125 | 129 | 145 |
| G | 115 | 140 | 144 | 160 |
5 要求
5.1 通用要求
探测器应满足本章的相关要求,并按第6 章的规定进行试验,以确认对第5 章要求的符合性。
5.2 外观要求
探测器的表面应无腐蚀、涂覆层脱落和起泡现象,无明显划伤、裂痕、毛刺等机械损伤,紧固部位应无松动。
5.3 主要部(器)件性能
5.3.1 感温元件的位置
探测器的感温元件(辅助功能的元件除外)与探测器安装表面的距离应不小于15 mm。
5.3.2 指示灯
探测器的指示灯要求如下。
a) A1、A2、B、C 和D 类探测器应具有红色报警指示灯,E、F 和G 类探测器应具有红色报警指示灯或有现场分体的探测器火灾报警状态其他指示方式。当被监视区域温度参数符合报警条件时,探测器报警指示灯应点亮,并保持至报警状态被复位。
b) 探测器应有黄色故障指示灯。当感温元件发生故障时,黄色故障指示灯应点亮,并保持至故障排除。
c) 通过报警指示灯显示探测器其他工作状态或感温元件故障时,被显示状态与火灾报警状态应有明显区别。
d) 可拆卸探测器的报警指示灯可安装在探头或其底座上。
e) 指示灯点亮时在其正前方6 m 处,在光照度不超过500 lx 的环境条件下,应清晰可见。
5.3.3 感温元件的故障监测
探测器的感温元件发生断路、短路故障(短路时发出火灾报警信号除外)时,与其连接的控制和指示设备应能在100 s 内发出探测器故障信号。
5.3.4 感温元件的防护性能
探测器的外壳结构设计应能防止直径为12.5+0.2 0 mm 的球形物体触及感温元件。
5.3.5 数据输出功能
具有地址点的探测器应具有温度数据输出功能。
5.3.6 辅助设备连接
探测器连接其他辅助设备(例如远程确认灯、控制继电器等)时,与辅助设备之间的连接线断路和短路不应影响探测器的正常工作。
5.3.7 可拆卸探测器状态监视
可拆卸探测器在探头与底座分离时,应为控制和指示设备发出故障信号提供识别手段。探测器的进线、出线不应为同一接线端子。
5.3.8 出厂设置改变
除非使用特殊手段(如专用工具、密码、破坏)或破坏封条,否则探测器的出厂设置不应被改变。
5.3.9 现场设置
探测器的响应性能如能在探测器或在与其相连的控制和指示设备上进行现场设置,要求如下:
a) 当制造商明示所有设置均满足本文件要求时,探测器在任意设置的条件下均应满足本文件的要求,且只能通过专用工具、密码或探头与底座分离等手段改变现场设置;
b) 当制造商明示某一设置不满足本文件的要求时,该设置应只能通过专用工具、密码手段实现,且应在探测器上或有关文件中明确标明该项设置不能满足本文件的要求。
5.4 控制软件要求
5.4.1 软件要求
对于依靠软件控制而且符合本文件要求的探测器,软件设计应满足5.4.2 的要求。
5.4.2 软件设计
5.4.2.1
制造商应提交软件设计资料,资料应有充分的内容证明软件设计符合本文件要求并应至少包括以下内容。
a) 主程序的功能描述(如流程图或结构图),包括:
1) 各模块及其功能的主要描述;
2) 各模块相互作用的方式;
3) 程序的全部层次;
4) 软件与探测器硬件相互作用的方式;
5) 模块调用的方式,包括中断过程。
b) 存储器地址分配情况(如程序、特定数据和运行数据)。
c) 软件及其版本唯一识别标识。
5.4.2.2
根据检验需要,制造商应能提供至少包含以下内容的详细设计文件。
a) 系统总体配置概况,包括所有软件和硬件部分。
b) 程序中每个模块的描述,包括:
1) 模块名称;
2) 执行任务的描述;
3) 接口的描述,包括数据传输方式、有效数据的范围和验证。
5.5 响应方位性能
5.5.1 响应时间的测量
5.5.1.1
测量探测器响应时间前,应按6.1.4 的规定将探测器安装在符合附录A 规定的标准温箱(以下简称“温箱”)中,并按6.1.3 的规定使探测器处于正常监视状态。如无特殊要求,应在探测器的最大响应时间方位上进行响应时间的测量。
5.5.1.2
调节温箱内气流温度至规定的初始温度,如在有关条文中没有特殊指明,温箱的初始温度为表1 规定的相应探测器类别的典型应用温度,按制造商规定的稳定时间进行稳定(如未规定,稳定10 min)。然后以规定的升温速率升温至探测器发出火灾报警信号,探测器的响应时间为从开始升温到探测器发出火灾报警信号时的时间间隔。试验过程中,温箱中的气流应保持恒定,相当于25 ℃时测得的气流速度为(0.8±0.1)m/s,温度误差为±2 ℃。
5.5.2 方位性能
探测器按同一方向绕其垂直轴线旋转45°,共测量8 次响应时间,其中,最大响应时间和最小响应时间对应的方位,分别为最大响应时间方位和最小响应时间方位。每次测得的响应时间应不小于表2 中规定的响应时间下限值,且不大于表2 规定的响应时间上限值。
5.6 动作温度性能
探测器的动作温度应在表1 规定的动作温度下限值、上限值之间。
5.7 响应时间性能
探测器的响应时间应符合表2 的规定。
5.8 25 ℃起始响应时间性能
典型应用温度高于25 ℃的各类探测器(A1 和A2 类探测器不进行此项试验),从25 ℃开始,以 3 ℃/min 和20 ℃/min 升温速率测得的响应时间应不小于表2 规定的响应时间下限值。
表 2 探测器响应时间
| 升温速率 ℃/min | A1类探测器 | A2、B、C、D、E、F、G类探测器 | ||||||
|---|---|---|---|---|---|---|---|---|
| 响应时间下限值(≥) | 响应时间上限值(≤) | 响应时间下限值(≥) | 响应时间上限值(≤) | |||||
| min | s | min | s | min | s | min | s | |
| 1 | 29 | 00 | 40 | 20 | 29 | 00 | 46 | 00 |
| 3 | 7 | 13 | 13 | 40 | 7 | 13 | 16 | 00 |
| 5 | 4 | 09 | 8 | 20 | 4 | 09 | 10 | 00 |
| 10 | 1 | 00 | 4 | 20 | 2 | 00 | 5 | 30 |
| 20 | 0 | 30 | 2 | 20 | 1 | 00 | 3 | 13 |
| 30 | 0 | 20 | 1 | 40 | 0 | 40 | 2 | 25 |
5.9 高温响应性能
探测器从表1规定的典型应用温度开始,以不大于 1℃/min 的升温速率升温至表1规定的最高应用温度,稳定 2h ,稳定前和稳定期间,探测器不应发出火灾报警或故障信号;然后,分别以 3℃/min 和 20℃/min 升温速率测得的响应时间应符合表3的规定。
表 3 探测器高温响应时间
| 探测器类别 | 响应时间下限值(≥) | 响应时间上限值(≤) | ||||||
|---|---|---|---|---|---|---|---|---|
| 升温速率3℃/min | 升温速率20℃/min | 升温速率3℃/min | 升温速率20℃/min | |||||
| min | s | min | s | min | s | min | s | |
| A1 | 1 | 20 | 0 | 12 | 13 | 40 | 2 | 20 |
| 其他 | 1 | 20 | 0 | 12 | 16 | 00 | 3 | 13 |
5.10 电源参数波动性能
在规定的电源参数上、下限值,探测器从表1规定的典型应用温度开始,分别以 3℃/min 和 20℃/min 升温速率测得的响应时间应符合表2的规定。
5.11 环境试验前响应时间性能
探测器从表1规定的典型应用温度开始,分别以 3℃/min 和 20℃/min 升温速率测得的响应时间应符合表2的规定,且任意两只探测器以相同升温速率测得的响应时间相差变化应满足:对 3℃/min 升温速率的响应时间变化应不超过 4min 00s ;对 20℃/min 升温速率的响应时间变化应不超过 60 s 。
5.12 高温(耐久)性能
探测器(A1、A2和B类探测器不进行此项试验)应能耐受表4规定的高温环境试验。高温环境试验期间,试样不通电。高温环境试验后,接通控制和指示设备,探测器应能处于正常监视状态;分别以 3℃/min 和 20℃/min 升温速率测得的响应时间应符合表2规定,且可复位式探测器与环境试验前测量的响应时间相差变化应满足:对 3℃/min 升温速率的响应时间变化应不超过 2min 40s ;对 20℃/min 升温速率的响应时间变化应不超过 30s 。
表 4 高温(耐久)试验条件
| 探测器类别 | 温度 ℃ | 持续时间 d |
|---|---|---|
| C | 80±2 | 21 |
| D | 95±2 | 21 |
| E | 110±2 | 21 |
| F | 125±2 | 21 |
| G | 140±2 | 21 |
5.13 气候环境耐受性
探测器应能耐受表5规定的气候环境条件下的各项试验,其中低温(运行)试验应根据制造商标称的产品适用环境温度选择试验条件I或试验条件Ⅱ,并满足下述要求。
a)试验期间,初始为正常监视状态的探测器应保持正常监视状态。
b)试验后,探测器不应发生破坏涂覆和腐蚀现象。
c)试验后,分别以 3℃/min 和 20℃/min 升温速率测得的响应时间应符合表2的规定,且可复位式探测器与环境试验前测量的响应时间相差变化应满足:对 3℃/min 升温速率的响应时间变化应不超过 2min 40s ;对 20℃/min 升温速率的响应时间变化应不超过 30s 。
表 5 气候环境试验条件
| 试验名称 | 试验参数 | 试验条件 | 工作状态 | |
|---|---|---|---|---|
| 低温(运行)试验 | 温度/℃ | I | II | 正常监视状态 |
| -10±2 | -40±2 | |||
| 持续时间/h | 2 | 2 | ||
| 交变湿热(运行)试验 | 温度/℃ | 40±2 | 正常监视状态 | |
| 循环周期 | 2 | |||
| 恒定湿热(耐久)试验 | 温度/℃ | 40±2 | 不通电状态 | |
| 相对湿度/% | 93±3 | |||
| 持续时间/d | 21 | |||
| 二氧化硫(SO2)腐蚀(耐久)试验 | SO2浓度体积比 | (25±5)×10⁻⁶ | 不通电状态 | |
| 温度/℃ | 25±2 | |||
| 相对湿度/% | 75±5 | |||
| 持续时间/d | 21 | |||
5.14 机械环境耐受性
探测器应能耐受表6规定的机械环境条件下的各项试验,并满足下述要求。
a)试验期间,初始为正常监视状态的探测器应保持正常监视状态。
b)试验后,探测器不应有机械损伤和紧固部位松动现象。
c)试验后,分别以 3℃/min 和 20℃/min 升温速率测得的响应时间应符合表2的规定,且可复位式探测器与环境试验前测量的响应时间相差变化应满足:对 3℃/min 升温速率的响应时间变化应不超过 2min 40s ;对 20℃/min 升温速率的响应时间变化应不超过 30s 。
表 6 机械环境条件
| 试验名称 | 试验参数 | 试验条件 | 工作状态 | |
|---|---|---|---|---|
| 冲击(运行)试验 | 冲击脉冲类型 | 半正弦波 | 正常监视状态 | |
| 脉冲持续时间/ms | 6 | |||
| 峰值加速度/(m/s²) | (100-20M)×10, M为探测器的质量, 单位为千克(kg) | M≤4.75kg时, 进行试验 | ||
| M>4.75kg: 不进行试验 | ||||
| 冲击方向数 | 1 | |||
| 冲击次数 | 3 | |||
| 碰撞试验 | 碰撞能量/J | 1.9±0.1 | 正常监视状态 | |
| 锤头速度/(m/s) | 1.5±0.125 | |||
| 碰撞次数 | 1 | |||
| 振动(正弦)(运行)试验 | 频率循环范围/Hz | 10~150 | 正常监视状态 | |
| 加速度幅值/(m/s²) | 10 | |||
| 扫频速率/(oct/min) | 1 | |||
| 轴线上扫频循环数 | 1 | |||
| 轴线数 | 1 | |||
| 振动(正弦)(耐久)试验 | 频率循环范围/Hz | 10~150 | 不通电状态 | |
| 加速度幅值/(m/s²) | 10 | |||
| 扫频速率/(oct/min) | 1 | |||
| 轴线扫频次数 | 20 | |||
| 轴线数 | 1 | |||
5.15 电磁兼容性能
探测器应能耐受表7规定的电磁干扰条件下的各项试验,并满足下述要求。
a)试验期间,探测器应保持正常监视状态。
b)试验后,分别以 3℃/min 和 20℃/min 升温速率测得的响应时间应符合表2的规定,且可复位式探测器与环境试验前测量的响应时间相差变化应满足:对 3℃/min 升温速率的响应时间变化应不超过 4min 00s ;对 20℃/min 升温速率的响应时间变化应不超过 30s。
表 7 电磁干扰条件
| 试验名称 | 试验参数 | 试验条件 | 工作状态 |
|---|---|---|---|
| 静电放电抗扰度试验 | 放电电压/kV | 空气放电(绝缘体外壳):8;接触放电(导体外壳和耦合板):6 | 正常监视状态 |
| 放电极性 | 正、负 | ||
| 放电间隔/s | ≥1 | ||
| 每点放电次数 | 10 | ||
| 射频电磁场辐射抗扰度试验 | 场强/(V/m) | 10 | 正常监视状态 |
| 频率范围/MHz | 80~1000 | ||
| 扫频步长 | 不超过前一频率的1% | ||
| 调制幅度 | 80%(1kHz,正弦) | ||
| 射频场感应的传导骚扰抗扰度试验 | 频率范围/MHz | 0.15~80 | 正常监视状态 |
| 电压/dBμV | 140 | ||
| 调制幅度 | 80%(1kHz,正弦) | ||
| 电快速瞬变脉冲群抗扰度试验 | 瞬变脉冲电压/kV | 连接线:1×(1±0.1) | 正常监视状态 |
| 重复频率/kHz | 5×(1±0.2) | ||
| 极性 | 正、负 | ||
| 时间 | 每次1min | ||
| 施加次数 | 3 | ||
| 浪涌(冲击)抗扰度试验 | 浪涌(冲击)电压/kV | 线-地1×(1±0.1);线-线0.5×(1±0.1) | 正常监视状态 |
| 极性 | 正、负 | ||
| 试验次数 | 5 | ||
| 试验间隔/s | 60 |
5.16 跌落性能
探测器应能耐受表8规定试验条件下的跌落试验,并满足下述要求。
a)试验后,探测器不应有机械损伤和紧固部位松动现象。
b)试验后,分别以 3℃/min 和 20℃/min 升温速率测得的响应时间应符合表2的规定,且可复位式探测器与环境试验前测量的响应时间相差变化应满足:对 3℃/min 升温速率的响应时间变化应不超过 2min 40s ;对 20℃/min 升温速率的响应时间变化应不超过 30s。
表 8 跌落试验条件
| 试验名称 | 试验参数 | 试验条件 | 工作状态 |
|---|---|---|---|
| 跌落试验 | 跌落次数 | 2 | 不通电状态 |
| 跌落高度/mm | 1500 |
5.17 S型探测器附加性能
探测器在6.6、6.8、6.11和6.12规定的试验中测得的响应时间,应不小于表9规定的响应时间下限值。针对不同类别探测器,在表10规定的初始温度环境下稳定后,将探测器在 10s 内按最小响应时间方位放入气流速度为 0.8m/s ± 0.1m/s 、温度为表10规定的气流温度的试验箱内,保持 10min 以上。试验期间,探测器不应发出火灾报警信号或故障信号。
5.18 R型探测器附加性能
试验采用两只探测器,一只在最大响应时间方位上、另一只在最小响应时间方位上,从表11规定的初始温度,按5.5.1的规定,分别以 10℃/min, 20℃/min 和 30℃/min 的升温速率升温至探测器发出火灾报警信号,探测器的响应时间应符合表2的规定。
表 9 S 型探测器响应时间下限
| 升温速率 ℃/min | 响应时间下限值(≥) | |
|---|---|---|
| min | s | |
| 3 | 9 | 40 |
| 5 | 5 | 48 |
| 10 | 2 | 54 |
| 20 | 1 | 27 |
| 30 | 0 | 58 |
表 10 S 型探测器附加试验温度
| 探测器类别 | 初始温度 ℃ | 气流温度 ℃ |
|---|---|---|
| A1S | 5±2 | 50±2 |
| A2S | 5±2 | 50±2 |
| BS | 20±2 | 65±2 |
| CS | 35±2 | 80±2 |
| DS | 50±2 | 95±2 |
| ES | 65±2 | 110±2 |
| FS | 80±2 | 125±2 |
| GS | 95±2 | 140±2 |
表 11 R 型探测器附加试验初始温度
| 探测器类别 | 初始温度 ℃ |
|---|---|
| A1R | 5±2 |
| A2R | 5±2 |
| BR | 20±2 |
| CR | 35±2 |
| DR | 50±2 |
| ER | 65±2 |
| FR | 80±2 |
| GR | 95±2 |
5.19 复合探测
同时具有感烟火灾探测功能和/或一氧化碳火灾探测功能的复合式探测器,还应同时满足GB4715和/或GB15631中的相关要求。
6 试验
6.1 通则
6.1.1 试验大气条件
除在有关条文另有说明外,各项试验均在下述大气条件下进行。
——温度:15 ℃~35 ℃。
——相对湿度:25%~75%。
——大气压力:86 kPa~106 kPa。
6.1.2 容差
除有关条文另有说明外,各项试验数据的容差均为±5%;环境条件参数偏差应符合GB/T 16838 规定。
6.1.3 试验的正常监视状态
如试验方法要求探测器处于正常监视状态,应将探测器与制造商提供的控制和指示设备连接。
在有关条文中没有特殊要求时,应保证探测器的工作电压为额定工作电压,并在试验期间保持工作电压稳定。
注: 探测器的检测报告包含试验期间探测器配接的控制和指示设备的型号、制造商等内容。
6.1.4 探测器安装
探测器应按制造商规定的正常安装方式安装。如果说明书给出多种安装方式,试验中应采用对探测器工作最不利的安装方式。
6.1.5 试验样品
6.1.5.1 试验前,制造商应提供下列试验样品(以下简称“试样”):
a) 可复位式试样为16 只;
b) 不可复位式试样为64 只;
c) 不可复位式S 型试样为65 只;
d) 不可复位式R 型试样为70 只。
注: 对于可拆卸式试样,包括探头和底座。
6.1.5.2 制造商应提供与试样连接的控制和指示设备。
6.1.5.3 试样感温元件为密封结构时,还应提供1 只可拆卸试样。
6.1.6 试验程序
6.1.6.1 试验前对试样予以编号,可复位式探测器的试验程序见表12,不可复位式探测器的试验程序 见表13。
6.1.6.2 对于能现场调整类别的试样,按下述方式进行试验:
a) 6.7、6.8、6.9、6.10、6.12、6.28 和6.29 规定的试验应分别设置在每种类别上进行;
b) 6.13 规定的试验应设置在最高温度类别上进行;
c) 其他试验应设置在任一类别进行。
6.1.6.3 对于S 型和/或R 型的各类探测器,除进行6.2~6.27 规定的试验外,还应分别进行6.28 和/ 或6.29 规定的试验。
表 12 可复位探测器试验程序
| 试验程序 | 探测器编号 | |||||||||
|---|---|---|---|---|---|---|---|---|---|---|
| 升温速率°C/min | 其他 | |||||||||
| 序号 | 章条号 | 试验项目 | ≤0.2 | 1 | 3 | 5 | 10 | 20 | 30 | |
| 1 | 6.2 | 外观 | 1只 | |||||||
| 2 | 6.3 | 主要部(器)件 | 1只 | |||||||
| 3 | 6.4 | 控制软件 | 1只 | |||||||
| 4 | 6.5 | 标志和使用说明书 | 1只 | |||||||
| 5 | 6.6 | 方位试验 | 1 | |||||||
| 6 | 6.7 | 动作温度试验 | 1、2 | |||||||
| 7 | 6.8 | 响应时间试验 | 1、2 | 1、2 | 1、2 | 1、2 | 1、2 | 1、2 | ||
| 8 | 6.9 | 25℃起始响应时间试验 | 1 | 1 | ||||||
| 9 | 6.10 | 高温响应试验 | 1 | 1 | ||||||
| 10 | 6.11 | 电源参数波动试验 | 1、2 | 1、2 | ||||||
| 11 | 6.12 | 环境试验前响应时间试验 | 3~16 | 3~16 | ||||||
| 12 | 6.13 | 高温(耐久)试验 | 3 | 3 | ||||||
| 13 | 6.14 | 低温(运行)试验 | 4 | 4 | ||||||
| 14 | 6.15 | 交变湿热(运行)试验 | 5 | 5 | ||||||
| 15 | 6.16 | 恒定湿热(耐久)试验 | 6 | 6 | ||||||
| 16 | 6.17 | 二氧化硫(SO2)腐蚀(耐久)试验 | 7 | 7 | ||||||
| 17 | 6.18 | 冲击(运行)试验 | 8 | 8 | ||||||
| 18 | 6.19 | 碰撞试验 | 9 | 9 | ||||||
| 19 | 6.20 | 振动(正弦)(运行)试验 | 10 | 10 | ||||||
| 20 | 6.21 | 振动(正弦)(耐久)试验 | 10 | 10 | ||||||
| 21 | 6.22 | 静电放电抗扰度试验 | 11 | 11 | ||||||
| 22 | 6.23 | 射频电磁场辐射抗扰度试验 | 12 | 12 | ||||||
| 23 | 6.24 | 射频场感应的传导骚扰抗扰度试验 | 13 | 13 | ||||||
| 24 | 6.25 | 电快速瞬变脉冲群抗扰度试验 | 14 | 14 | ||||||
| 25 | 6.26 | 浪涌(冲击)抗扰度试验 | 15 | 15 | ||||||
| 26 | 6.27 | 跌落试验 | 16 | 16 | ||||||
| 27 | 6.28 | S型探测器附加试验 | 1 | |||||||
| 28 | 6.29 | R型探测器附加试验 | 1、2 | 1、2 | 1、2 | |||||
表 13 不可复位探测器试验程序
| 试验程序 | 探测器编号 | |||||||||
|---|---|---|---|---|---|---|---|---|---|---|
| 升温速率℃/min | 其他 | |||||||||
| 序号 | 章条号 | 试验项目 | ≤0.2 | 1 | 3 | 5 | 10 | 20 | 30 | |
| 1 | 6.2 | 外观 | 1只 | |||||||
| 2 | 6.3 | 主要部(器)件 | 1只 | |||||||
| 3 | 6.4 | 控制软件 | 1只 | |||||||
| 4 | 6.5 | 标志和使用说明书 | 1只 | |||||||
| 5 | 6.6 | 方位试验 | 1~8 | |||||||
| 6 | 6.7 | 动作温度试验 | 9、10 | |||||||
| 7 | 6.8 | 响应时间试验 | 11、12 | 13、14 | 15、16 | 17、18 | 19、20 | 21、22 | ||
| 8 | 6.9 | 25℃起始响应时间试验 | 23 | 24 | ||||||
| 9 | 6.10 | 高温响应试验 | 25 | 26 | ||||||
| 10 | 6.11 | 电源参数波动试验 | 27、28 | 29、30 | ||||||
| 升温速率°C/min | 其他 | |||||||||
| 序号 | 章条号 | 试验项目 | ≤0.2 | 1 | 3 | 5 | 10 | 20 | 30 | |
| 11 | 6.12 | 环境试验前响应时间试验 | 31、32 | 33、34 | ||||||
| 12 | 6.13 | 高温(耐久)试验 | 35 | 36 | ||||||
| 13 | 6.14 | 低温(运行)试验 | 37 | 38 | ||||||
| 14 | 6.15 | 交变湿热(运行)试验 | 39 | 40 | ||||||
| 15 | 6.16 | 恒定湿热(耐久)试验 | 41 | 42 | ||||||
| 16 | 6.17 | 二氧化硫(SO2)腐蚀(耐久)试验 | 43 | 44 | ||||||
| 17 | 6.18 | 冲击(运行)试验 | 45 | 46 | ||||||
| 18 | 6.19 | 碰撞试验 | 47 | 48 | ||||||
| 19 | 6.20 | 振动(正弦)(运行)试验 | 49 | 50 | ||||||
| 20 | 6.21 | 振动(正弦)(耐久)试验 | 51 | 52 | ||||||
| 21 | 6.22 | 静电放电抗扰度试验 | 53 | 54 | ||||||
| 22 | 6.23 | 射频电磁场辐射抗扰度试验 | 55 | 56 | ||||||
| 23 | 6.24 | 射频场感应的传导骚扰抗扰度试验 | 57 | 58 | ||||||
| 24 | 6.25 | 电快速瞬变脉冲群抗扰度试验 | 59 | 60 | ||||||
| 25 | 6.26 | 浪涌(冲击)抗扰度试验 | 61 | 62 | ||||||
| 26 | 6.27 | 跌落试验 | 63 | 64 | ||||||
| 27 | 6.28 | S型探测器附加试验 | 65 | |||||||
| 28 | 6.29 | R型探测器附加试验 | 65、66 | 67、68 | 69、70 | |||||
6.2 外观
目视检查试样是否符合5.2 的要求。
6.3 主要部(器)件
手动操作、目视检查试样是否符合5.3 的要求。
6.4 控制软件
按5.4 的要求检查试样的软件设计。
6.5 标志和使用说明书
手动操作、目视检查标志和使用说明书是否分别满足第8 章、第9 章的要求。
6.6 方位试验
6.6.1 试验步骤
6.6.1.1 按5.5.1 的规定,以10 ℃/min 的升温速率测量试样的响应时间。每测完1 次,试样应按同一方向绕其垂直轴线旋转45°共测量8 次,方位选取不应遗漏因探测器结构造成的明显最大响应时间和最小响应时间方位。
6.6.1.2 记录试样8 个方位上的响应时间。记录试样最大响应时间和最小响应时间对应的方位。在以后的试验中,这两个方位分别记录为最大响应时间方位和最小响应时间方位。
6.6.2 试验设备
满足附录A 要求的温箱。
6.7 动作温度试验
6.7.1 试验步骤
试验用两只试样,一只在最大响应时间方位、另一只在最小响应时间方位上进行。按5.5.1 的规定,以1 ℃/min 的升温速率升温至表1 规定的相应探测器类别的最高应用温度。然后,以不大于0.2 ℃/min 的升温速率升温至试样发出火灾报警信号,记录试样的动作温度。
6.7.2 试验设备
满足附录A 要求的温箱。
6.8 响应时间试验
6.8.1 试验步骤
试验用两只试样,一只在最大响应时间方位、另一只在最小响应时间方位。按5.5.1 的规定,分别以1 ℃/min、3 ℃/min、5 ℃/min、10 ℃/min、20 ℃/min 和30 ℃/min 的升温速率测量试样的响应时间,记录试样的响应时间。
6.8.2 试验设备
满足附录A 要求的温箱。
6.9 25 ℃起始响应时间试验
6.9.1 试验步骤
试样应在最小响应时间方位上进行试验。温箱中气流的初始温度为25 ℃,按5.5.1 的规定,分别以3 ℃/min 和20 ℃/min 的升温速率测量试样的响应时间,记录试样的响应时间。
6.9.2 试验设备
满足附录A 要求的温箱。
6.10 高温响应试验
6.10.1 试验步骤
按5.5.1 的规定,以不大于1 ℃/min 的升温速率升温至表1 规定的相应类别试样的最高应用温度,稳定2 h,观察并记录试样的状态,然后分别以3 ℃/min 和20 ℃/min 的升温速率测量试样的响应时间,记录试样的响应时间。
6.10.2 试验设备
满足附录A 要求的温箱。
6.11 电源参数波动试验
6.11.1 试验步骤
6.11.1.1 试样为直流恒压供电时,按照其额定电压的85% 和110%(或按制造商规定的电压波动范围,电压下限应小于额定电压85%,电压上限应大于额定电压110%)给试样供电,按5.5.1 的规定,分别以3 ℃/min 和20 ℃/min 的升温速率测量试样的响应时间,记录试样的响应时间。
6.11.1.2 试样为脉动电压供电时,应能保证在长度为1 000 m、截面积为1.0 mm2 的铜质双绞导线(或按制造商规定的试验条件,铜质双绞导线长度应不小于1 000 m)条件下,与控制和指示设备连接。调节试验装置,使控制和指示设备的输入电压分别为其额定电压的85 %和110 %,按5.5.1 的规定,分别以3 ℃/min 和20 ℃/min 的升温速率测量试样的响应时间,记录试样的响应时间。
6.11.2 试验设备
满足试验要求的可调电源和铜质绞线。
6.12 环境试验前响应时间试验
6.12.1 试验步骤
按5.5.1 的规定,分别以3 ℃/min 和20 ℃/min 的升温速率测量试样的响应时间,记录试样在各升温速率下的响应时间。
6.12.2 试验设备
满足附录A 要求的温箱。
6.13 高温(耐久)试验
6.13.1 试验步骤
6.13.1.1 将试样放入表4 所示温度的试验箱内持续21 d。高温环境期间试样不通电。
6.13.1.2 将试样由试验箱中取出,在正常大气条件下恢复1 h 以上,按6.1.3 的要求连接控制和指示设备,观察并记录试样状态。
6.13.1.3 若试样能处于正常监视状态,在最大响应时间方位上将试样安装到温箱内,按5.5.1 的规定,分别以3 ℃/min 和20 ℃/min 的升温速率测量试样的响应时间,记录试样的响应时间。
6.13.2 试验设备
试验设备应符合GB/T 16838 的规定。
6.14 低温(运行)试验
6.14.1 试验步骤
6.14.1.1 将试样放置到低温试验箱内,使试样处于正常监视状态。在正常大气条件下保持 1 h,然后以不大于 1 ℃/min 的降温速率将温度降到制造商标称的温度等级,在此条件下稳定 2 h,观察并记录试样的状态。
6.14.1.2 低温环境结束后,关断控制和指示设备,以不大于 1 ℃/min 的升温速率将温度恢复到正常大气温度。取出试样,在正常大气条件下恢复 1 h 以上。
6.14.1.3 若试样能处于正常监视状态,在最大响应时间方位上将试样安装到温箱内,使试样处于正常监视状态,分别以3 ℃/min 和20 ℃/min 的升温速率测量试样的响应时间,记录试样的响应时间。
6.14.2 试验设备
试验设备应符合GB/T 16838 的规定。
6.15 交变湿热(运行)试验
6.15.1 试验步骤
6.15.1.1 将试样放置到湿热试验箱内,按6.1.3 的规定,使试样处于正常监视状态。
6.15.1.2 按 GB/T 16838 中规定的试验方法,对试样进行高温温度为(40±2)℃、两个循环周期的交变湿热(运行)试验。试验期间,观察并记录试样的状态。
6.15.1.3 关断控制和指示设备,将试样由试验箱内取出,在正常大气条件下放置至少 1 h。连接控制和指示设备,观察试样工作情况。
6.15.1.4 若试样能处于正常监视状态,在最大响应时间方位上将试样安装到温箱内,使试样处于正常监视状态,分别以3 ℃/min 和20 ℃/min 的升温速率测量试样的响应时间,记录试样的响应时间。
6.15.2 试验设备
试验设备应符合GB/T 16838 的规定。
6.16 恒定湿热(耐久)试验
6.16.1 试验步骤
6.16.1.1 将试样放置在温度为(40±2)℃的试样箱内放置2 h 后。调节试验箱,使试验箱在温度为(40±2)℃,相对湿度(93±3)%的条件下连续保持 21 d。湿热环境期间,试样不通电。
6.16.1.2 湿热环境结束后,将试样由湿热试验箱内取出,在正常大气条件放置至少 1 h~2 h。连接控制和指示设备,观察试样工作情况。
6.16.1.3 若试样能处于正常监视状态,在最大响应时间方位上将试样安装到温箱内,使试样处于正常监视状态,分别以3 ℃/min 和20 ℃/min 的升温速率测量试样的响应时间,记录试样的响应时间。
6.16.2 试验设备
试验设备应符合GB/T 16838 的规定。
6.17 二氧化硫(SO2)腐蚀(耐久)试验
6.17.1 试验步骤
6.17.1.1 试样连接足够长的非镀锡铜导线,以保证腐蚀环境后可直接测量响应时间;腐蚀环境期间,试样不通电。
6.17.1.2 将试样放置在温度为(25±2)℃、SO2 浓度为(25±5)×10—6 (体积比)、相对湿度为(75±5)%的试验箱内,保持 21 d。
6.17.1.3 腐蚀环境后,将试样在温度为(40±2)℃、相对湿度低于 50% 的试验箱内放置 16 h。
6.17.1.4 将试样取出,在正常大气条件放置 1 h~2 h。连接控制和指示设备,观察试样工作情况。
6.17.1.5 若试样能处于正常监视状态,在最大响应时间方位上将试样安装到温箱内,使试样处于正常 监视状态,分别以3 ℃/min 和20 ℃/min 的升温速率测量试样的响应时间,记录试样的响应时间。
6.17.2 试验设备
试验设备应符合GB/T 16838 的规定。
6.18 冲击(运行)试验
6.18.1 试验步骤
6.18.1.1 将试样安装面朝上,按6.1.4 的规定刚性安装在冲击试验台上,使试样处于正常监视状态,启 动冲击试验台,对质量为M[单位为千克(kg)]的试样,以峰值加速度为(100-20×M)×10 m/s²,脉冲 持续时间为6 ms 的半正弦波脉冲,向下连续冲击3 次。冲击期间以及冲击结束后的2 min 内,观察并 记录试样的工作状态。
6.18.1.2 冲击结束后,立即检查试样外观及紧固部位。
6.18.1.3 若试样能处于正常监视状态,在最大响应时间方位上将试样安装到温箱内,使试样处于正常 监视状态,分别以3 ℃/min 和20 ℃/min 的升温速率测量试样的响应时间,记录试样的响应时间。
6.18.2 试验设备
试验设备应符合GB/T 16838 的规定。
6.19 碰撞试验
6.19.1 试验步骤
6.19.1.1 将试样刚性安装在碰撞试验设备的水平板上,使试样处于正常监视状态。
6.19.1.2 调整碰撞试验设备,使锤头碰撞面的中心能从水平方向碰撞试样,并对准使试样最易遭受破 坏的部位。然后,以(1.5±0.125) m/s 的锤头速度、(1.9±0.1)J 的碰撞动能碰撞试样 1 次。碰撞期间 以及碰撞结束后的 2 min 内,观察并记录试样工作状态。
6.19.1.3 碰撞结束后,立即检查试样外观及紧固部位。
6.19.1.4 若试样能处于正常监视状态,在最大响应时间方位上将试样安装到温箱内,使试样处于正常 监视状态,分别以3 ℃/min 和20 ℃/min 的升温速率测量试样的响应时间,记录试样的响应时间。
6.19.2 试验设备
试验设备应符合GB/T 16838 的规定。
6.20 振动(正弦)(运行)试验
6.20.1 试验步骤
6.20.1.1 将试样按6.1.4 的要求刚性安装在振动台上,使试样处于正常监视状态。
6.20.1.2 启动振动试验台,在10 Hz~150 Hz 的频率循环范围内,以10 m/s² 的加速度幅值、1 倍频程/min 的扫频速率,在垂直于试样安装使用的轴线上进行1 次扫频循环。观察并记录试样状态。
6.20.1.3 振动结束后,检查试样外观及紧固部位。
6.20.1.4 若试样能处于正常监视状态,在最大响应时间方位上将试样安装到温箱内,使试样处于正常监视状态,分别以3 ℃/min 和20 ℃/min 的升温速率测量试样的响应时间,记录试样的响应时间。
6.20.2 试验设备
试验设备应符合GB/T 16838 的规定。
6.21 振动(正弦)(耐久)试验
6.21.1 试验步骤
6.21.1.1 将试样按6.1.4 的要求刚性安装在振动台上,试验期间,试样不通电。在10 Hz~150 Hz 的频 率循环范围内,以10 m/s² 的加速度幅值、1 倍频程/min 的扫频速率,在垂直于试样安装使用的轴线上 进行20 次扫频循环。
6.21.1.2 振动结束后,立即检查试样外观及紧固部位。连接控制和指示设备,观察并记录试样状态。
6.21.1.3 若试样能处于正常监视状态,在最大响应时间方位上将试样安装到温箱内,使试样处于正常 监视状态,分别以3 ℃/min 和20 ℃/min 的升温速率测量试样的响应时间,记录试样的响应时间。
6.21.2 试验设备
试验设备应符合GB/T 16838 的规定。
6.22 静电放电抗扰度试验
6.22.1 试验步骤
6.22.1.1 将试样按 GB/T 16838 的规定进行试验布置,使试样处于正常监视状态。
6.22.1.2 按 GB/T 16838 中规定的试验方法对试样施加表 7 所示条件下的干扰试验,期间观察并记录 试样状态。
6.22.1.3 干扰结束后,在最大响应时间方位上将试样安装到温箱内,使试样处于正常监视状态,分别以 3 ℃/min 和20 ℃/min 的升温速率测量试样的响应时间,记录试样的响应时间。
6.22.2 试验设备
试验设备应满足GB/T 17626.2 的要求。
6.23 射频电磁场辐射抗扰度试验
6.23.1 试验步骤
6.23.1.1 将试样按GB/T 16838 的规定进行试验布置,使试样处于正常监视状态。
6.23.1.2 按 GB/T 16838 中规定的试验方法对试样施加表7 所示条件下的干扰试验,期间观察并记录 试样状态。
6.23.1.3 干扰结束后,在最大响应时间方位上将试样安装到温箱内,使试样处于正常监视状态,分别以 3 ℃/min 和20 ℃/min 的升温速率测量试样的响应时间,记录试样的响应时间。
6.23.2 试验设备
试验设备应满足GB/T 17626.3 的要求。
6.24 射频场感应的传导骚扰抗扰度试验
6.24.1 试验步骤
6.24.1.1 将试样按 GB/T 16838 的规定进行试验布置,使试样处于正常监视状态。
6.24.1.2 按 GB/T 16838 中规定的试验方法对试样施加表 7 所示条件下的干扰试验,期间观察并记录 试样状态。
6.24.1.3 干扰结束后,在最大响应时间方位上将试样安装到温箱内,使试样处于正常监视状态,分别以 3 ℃/min 和20 ℃/min 的升温速率测量试样的响应时间,记录试样的响应时间。
6.24.2 试验设备
试验设备应满足GB/T 17626.6 的要求。
6.25 电快速瞬变脉冲群抗扰度试验
6.25.1 试验步骤
6.25.1.1 将试样按 GB/T 16838 的规定进行试验布置,使试样处于正常监视状态。
6.25.1.2 按GB/T 16838 中规定的试验方法对试样施加表7 所示条件下的干扰试验,期间观察并记录试样状态。
6.25.1.3 干扰结束后,在最大响应时间方位上将试样安装到温箱内,使试样处于正常监视状态,分别以 3 ℃/min 和20 ℃/min 的升温速率测量试样的响应时间,记录试样的响应时间。
6.25.2 试验设备
试验设备应满足GB/T 17626.4 的要求。
6.26 浪涌(冲击)抗扰度试验
6.26.1 试验步骤
6.26.1.1 将试样按 GB/T 16838 的规定进行试验布置,使试样处于正常监视状态。
6.26.1.2 按GB/T 16838 中规定的试验方法对试样施加表7 所示条件下的干扰试验,期间观察并记录 试样状态。
6.26.1.3 干扰结束后,在最大响应时间方位上将试样安装到温箱内,使试样处于正常监视状态,分别以 3 ℃/min 和20 ℃/min 的升温速率测量试样的响应时间,记录试样的响应时间。
6.26.2 试验设备
试验设备应满足GB/T 17626.5 的要求。
6.27 跌落试验
6.27.1 试验步骤
6.27.1.1 试样不通电,将试样(探头与底座分离的可拆卸探测器,只对探头进行试验;不可拆卸探测器 进行试验)按底部朝上、探头朝下的安装方式,按表8 所示条件,自由落体跌落至试验地面。
6.27.1.2 跌落高度是指试样下表面与试验地面之间的高度。
6.27.1.3 跌落结束后,检查试样外观及紧固部位。
6.27.1.4 若试样能处于正常监视状态,在最大响应时间方位上将试样安装到温箱内,使试样处于正常 监视状态,分别以3 ℃/min 和20 ℃/min 的升温速率测量试样的响应时间,记录试样的响应时间。
6.27.2 试验设备
满足附录B 要求的跌落设备。
6.28 S 型探测器附加试验
6.28.1 试验步骤
6.28.1.1 检查试样在6.6、6.8、6.11 和6.12 规定的试验中测得的响应时间是否不小于表9 规定的响应 时间下限值。
6.28.1.2 使试样处于正常监视状态。针对不同类别探测器,在表10 规定的初始温度环境下稳定后,将 试样在10 s 内按最小响应时间方位放入气流速度为0.8 m/s±0.1 m/s、温度为表10 规定的气流温度 的试验箱内,保持10 min 以上,观察并记录试样状态。
6.28.2 试验设备
试验设备符合GB/T 16838 的规定,以及满足附录A 要求的温箱。
6.29 R 型探测器附加试验
6.29.1 试验步骤
采用两只探测器,一只在最大响应时间方位上、另一只在最小响应时间方位上,使试样处于正常监 视状态,从表11 规定的初始温度,分别以10 ℃/min、20 ℃/min 和30 ℃/min 的升温速率升温至试样发 出火灾报警信号,记录试样在各升温速率下的响应时间。
6.29.2 试验设备
满足附录A 要求的温箱。
7 检验规则
7.1 出厂检验
7.1.1
产品岀厂前应对探测器至少进行下述试验项目的检验:
a) 响应时间试验;
b) 高温响应试验;
c) 电源参数波动试验;
d) 碰撞试验;
e) 低温(运行)试验;
f) S 型或R 型探测器附加试验(适用时)。
7.1.2
制造商应规定抽样方法、检验和判定规则。
7.2 型式检验
7.2.1
型式检验项目为本文件规定的全部适用试验项目。检验样品在出厂检验合格的产品中抽取。
7.2.2
有下列情况之一时,应进行型式检验:
a) 新产品或老产品转厂生产时的试制定型鉴定;
b) 正式生产后,产品的结构、主要部件或元器件、生产工艺等有较大的改变,可能影响产品性能;
c) 产品停产一年以上,恢复生产;
d) 发生重大质量事故;
e) 强制性准入制度有要求;
f) 质量监管部门依法提出要求。
7.2.3
检验结果按GB 12978 中规定的型式检验结果判定方法进行判定。
8 标志
8.1 产品标志
8.1.1
探测器应清晰标注如下信息:
a) 产品名称和类别(如A1、A1R、A1S、A2、B 等),如果探测器的类别可现场设置,则用符号P 代 替类别标志(见5.3.9);
b) 产品型号;
c) 产品执行的标准编号;
d) 制造商和生产企业的名称、地址;
e) 产品适用的环境温度;
f) 生产日期和产品编号;
g) 接线端子标注;
h) 警告用语(适用时)。
对于可拆卸探测器,探测器上的标志应至少包含a)~f)项,底座上的标志应至少包含b)和g)项。
8.1.2
产品标志信息中如使用不常用符号或缩写时,应在探测器的使用说明书中说明。
8.1.3
标志在探测器安装维护过程中应清晰可见。
8.1.4
标志不应加施在螺丝或其他易被拆卸的部件上。
8.2 质量检验标志
探测器应有质量检验合格标志。
8.3 标志耐久性
标志的耐久性应采用以下方式确认:用一块蘸有水的脱脂棉擦拭标志 15 次,再用一块蘸有75% 医用酒精的脱脂棉擦拭标志 15 次,擦拭总时间不超过 60 s。擦拭后,标志内容应能清晰识别,标志不 应脱落,且不应出现卷边。
9 使用说明书
探测器应有中文使用说明书。使用说明书应满足GB/T 9969 的有关要求,并包括以下内容:
a) 产品适用的环境温度;
b) 产品的分类;
c) 产品的安装方式和使用方法;
d) 如何进行日常维护;
e) 产品标志的内容;
f) 使用者应特别注意的事项。
附 录 A (规范性) 标准温箱
A.1
检验探测器响应时间的试验设备是专用的标准温箱。温箱的风道截面为正方形,并有一个水平 工作区域,如图A.1 所示,探测器安装在风道工作区域的顶板上,并使它与风道的两个侧壁对称。
A.2
风道中的气流流速在试验过程中应始终为0.8 m/s±0.1 m/s(25 ℃ 时测量值),并能分别以 0.2 ℃/min、1 ℃/min、3 ℃/min、5 ℃/min、10 ℃/min、20 ℃/min、30 ℃/min 的升温速率升温;测温误差为 ±2 ℃,响应时间测量误差±1 s。应保证探测器附近的气流不受风道底面和侧壁的影响,探测器不应受 到加热器的直接热辐射作用。
A.3
测温元件距离风道工作区域风道顶板应大于25 mm,并且测温元件在水平方向上位于探测器的 迎风侧距探测器至少50 mm。测温元件的时间常数应小于2 s。
标引序号说明:
1——工作区;
2——安装板;
3——探测器;
4——测温传感器;
5——导流装置;
6——气流方向。
图A.1 标准温箱工作区域示意图
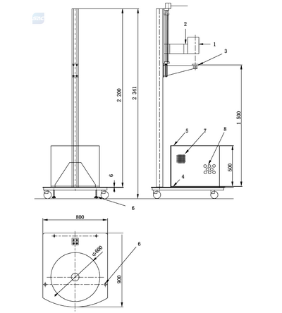
附 录 B(规范性)跌落试验装置
B.1 跌落试验装置如图B.1 所示。
B.2 跌落试验装置底部为经过淬火处理后的圆形钢板,表面平整无凹痕,厚度为 12 mm±1 mm,直径为Φ(600±20)mm。沿着圆形钢板四周应垂直设置高度为 500 mm±20 mm 的不锈钢丝编织的网状圆桶或冲孔板圆桶,不锈钢丝编织网孔尺寸为( 10±2)mm×(10±2)mm,钢丝直径为 Φ(2.0±0.5)mm或冲孔孔径为Φ(12±1)mm,孔间间距为18 mm±1 mm。
单位为毫米
标引序号说明:
1——夹手;
2——夹手气缸;
3——高度定位平台(可旋转);
4——12 mm 厚圆形钢板;
5——网状圆桶或冲孔板圆桶;
6——调平地脚;
7——不锈钢丝编织网孔;
8——冲孔。
图B.1 跌落试验装置示意图