J-BLJC-1REI0.5W-12B1Y-EX 集电防爆小型单面右向标志灯

参考资料
文件:J-BLJC-1REⅠ0.5W-12B1Y-Ex集中电源消防应急标志灯具说明书A4 1722330843554.pdf
检验报告
文件:J-BLJC-1REⅠ0.5W-12B1Y-Ex 检验报告.pdf ID410.pdf
认证证书
文件:J-BLJC-1REⅠ0.5W-12B1Y-Ex 认证证书.pdf ID410.pdf
高清图片
文件:J-BLJC-1REⅠ0.5W-12B1Y-Ex高清图片.zip
一、概述
集中电源集中控制型消防应急标志灯具,是采用LED为光源的集中电源持续型标志灯具,其设计满足GB 17945-2010《消防应急照明和疏散指示系统》的要求。其特点为:
- 远程指令控制、亮灯、灭灯功能;
- 电路短路自恢复保护;
- LED为光源,能耗极低;
- 恒流LED驱动,发光稳定;
- 应急状态可切换功能;
- 完善的自动检测功能;
- 本产品需要配合防爆管等相关配件(用户自备)使用;
- 灯具防护等级为IP67,防护方式采用密封胶圈和封胶方式,满足潮湿场合使用。
二、技术参数及灯具尺寸
1. 额定电压:DC24V 或 DC36V
2. 主电功耗:0.5W
3. 安装方式:壁挂
4. 光源类型:LED
5. 光源参数:DC3.0V,0.06W
6. 防爆标志:Ex db eb II B T6 Gb; Ex tb III C T80℃ Db
7. 工作方式:持续型
8. 表面亮度:50cd/㎡ ~ 300cd/㎡
9. 防护等级:IP67
10. 应急工作时间:90min
三、型号说明
四、工作原理
五、使用说明
工作状态:标志灯正常处于常亮状态,当发生紧急情况时,灯具转入应急状态,双向标志灯默认指向就近安全出口。
本系列应急灯具为功率总线专用灯具,采用低电压供电,而配套我司的A型应急电源使用,严禁接入AC220V/DC216V强电,接入强电将造成灯具损毁。
本系列灯具受应急照明控制器控制与管理,可接收由应急照明控制器发来的指令改变灯具的工作状态。
六、灯具地址
出厂地址:我司灯具出厂前已写入出厂地址,地址码见灯具出厂编码标签
(8位)。
编码地址:如现场编址,使用编码器编入1-999(详细作法请参考J-BL编码器说明书)。按实际需求记录出厂地址或编码地址,并记在施工现场图纸所对应的指定位置,并将整理好的施工图纸妥善存档,用于后期的系统调试。
注: 1.禁止安装未记录地址码的灯具;
2.灯具的编码操作需要与我司配套产品使用;
3.使用编码器编址时,同一电源下,灯具编址不可重复。
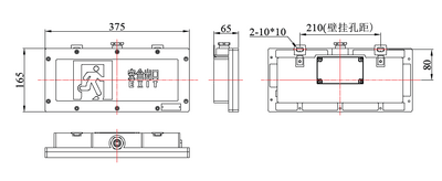
七、灯具外形尺寸(同系列灯具一致)
八、接线及安装说明
警告:安装设备前,请务必切断回路电源,电线接头需做防水、绝缘处理。
分别将灯具两根电源线接入智能疏散专用两线系统,确保线路连接牢固工整,接线示意如下:
九、安装方法
1、参照安装孔间距和外形尺寸,测量好具体打孔位置,用电钻进行打孔;
2、将灯具通过膨胀螺钉固定于安装位置;
3、将引出的回路电源线对应无极性接入,确保按线正确;
4、本产品需要配合防爆管(用户自备)使用。
安装示意图如下:
十、维护保养和排放
本产品为消防产品,应由受过培训的专业人员进行安装、调试和维修;灯具应安装或贮存于通风、干燥、无腐蚀环境的地方,以免内部元器件受潮。应尽量避免灯具受到摩擦、敲击和冲击,以防止外壳产生变形、破损等损坏现象。
十一、运输与贮存
1、灯具为易碎物品在运输过程中应平稳、牢固,避免因行车时碰撞损坏产品及包装,装卸时应轻抬轻放,不能碰、摔、撞;
2、灯具贮存时,均应放置于干燥、通风的地方,避免与有腐蚀性的物质接触并有必要的防潮、防晒、防震、防腐等措施。
十二、常见故障及处理方法
| 故障现象 | 原因分析 | 排除方法 |
|---|---|---|
| 灯具接入两线系 统后不亮 | 1、线路故障、供电电源故 障 2、灯具设置成了非持续型 |
1、检查灯具接线、测量接线处电压是否 DC36V; 2、将灯具类型改为持续型 |
| 单台灯具通讯故 障 | 1、供电电源原因 2、ID号错误 | 1、检查灯具是否正常点亮,测量接线处 电压是否正常; 2、检查系统中录入的ID号码是否正确。 |
| 应急启动后,疏散 灯具应急状态不 正常 | 灯具的应急状态模式错误 | 在主机设置中切换应急状态即可。 |
| 光源的更换方法 | 光源故障或损坏 | 联系专业维修工作人员进行更换 |
十三、安全使用注意事项
1、使用前,请您务必详细阅读此说明书,方可接通电源;
2、本产品必须由具有专业资格的人员进行安装、调试和维修作业。保内保外维修,均可以联系我公司售后服务部门,用户不要自行拆开或维修,以防发生意外;
3、安装设备前,请务必切断回路电源,电线按头需做防水、绝缘处理;
4、本系列消防应急灯具为IP67消防应急标志灯具,请按照实际使用环境选择相匹配IP防护等级的产品;安装环境不匹配易导致的产品性能出现故障;
5、本产品需要配合防爆管等相关配件(用户自备)使用;
6、如果您对安装或使用还有疑问,请向销售商咨询。