J-D-0.5KVA-01 壁挂500W应急照明集中电源

参考资料
文件:J-D-0.5KVA-01、J-D-1KVA-02消防应急照明集中电源说明书A2 1722237946080.pdf
检验报告
文件:J-D-0.5KVA-01 检验报告.pdf ID551.pdf
认证证书
文件:J-D-0.5KVA-01 认证证书.pdf ID551.pdf
高清图片
1 概述
1.1 产品说明
1.1.1 产品介绍
欢迎使用本公司 J-D-0.5KVA-01/J-D-1KVA-02 型号的 EPS 消防应急照明专用电源,该电源的额定功率为 500W/1KW。
J-D-0.5KVA-01/J-D-1KVA-02 型号的 EPS 消防应急照明专用电源以铅酸电池为储能装置,为 B 型集中电源型消防应急灯具供电的电源,其设计满足 GB 17945-2010《消防应急照明和疏散指示系统》的要求。
本手册只适用于本公司规定型号产品,其中介绍了原理、接线说明、操作说明、故障排查与维护、保修条款。
1.1.2 负载说明
本设备为应急照明集中电源(消防应急灯具专用应急电源),属于专用设备,因此输出负载类型只能为本公司生产的 B 型集中控制型消防灯具。
1.1.3 产品特点
- 控制部分采用先进的微处理芯片,具有强大的逻辑处理能力;
- 主备电转换时间快;
- 系统实时检测和监控电池状态,当出现异常时发出声光报警,以便及时维护;
- 具有输出过流、开路及充电器开路等故障检测功能;
- 液晶显示的人机界面,显示清晰、操作简单;
- 具有消防联动接口及远程在线监控功能;
- 具有 2 个回路输出,每一路实时检测;
1.2 技术参数
| 特性 | 型号 | J-D-0.5KVA-01 |
|---|---|---|
| 输出 | 额定功率 | 500W |
| 输出电压 | AC220V/DC216V | |
| 输出支路 | 2 回路 | |
| 输出电流 | 单回路电流≤2.2A、总电流≤2.2A | |
| 输入 | 额定输入电压 | AC220V |
| 市电频率 | 50Hz | |
| 铅酸电池 | 电池类型 | 铅酸电池 |
| 电池组电压 | 36V | |
| 电池组容量 | 38Ah | |
| 电池组数 | 1 组 | |
| 防护等级 | IP33 | |
| 应急转换时间 | ≤0.1s | |
| 应急时间 | ≥90 分钟 | |
| 电池充电时间 | ≤24 小时 | |
| 保护功能 | 电池组过放 | |
| 显示方式 | LED 运行状态显示、LCD 汉字信息显示 | |
| 远程通讯 | 通讯方式:KWIB | |
| 绝缘电阻 | ≥50MΩ | |
| 耐压强度 | 输入、输出对机壳(地):AC1500V 50Hz 不击穿、无飞弧 | |
| 相对湿度 | 0~90% 不结露 | |
| 环境温度 | -10℃~+55℃ | |
| 适应负载 | 本公司生产的 B 型消防灯具: | |
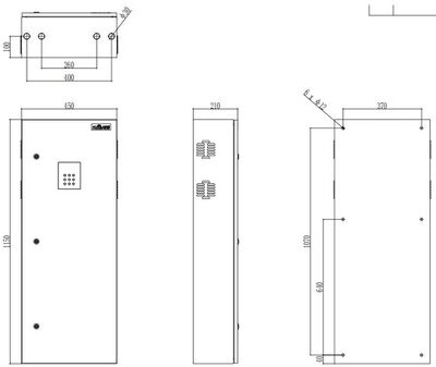
| 设备外形尺寸 | 1150*450*210(高×宽×深 mm) | |
| 安装方式 | 壁挂 | |
| 进线方式 | 箱体下方进出线 | |
1.3 系统原理
应急照明集中电源原理示意图如下:
1.4 安全须知
- 在安装使用规定的 EPS 产品时,请详细阅读本说明书。
- 本说明书须妥善保管,便于使用者对此设备的理解和维护
- 本说明书只限用于本公司规定型号 EPS 的说明使用。
- 安全操作的注意事项,可分类为“高压危险”和“警告”。
- 本说明书应在使用时提供参考,在报警或重要工作状态时做指导。
1.4.1 图形符号定义
此符号意味着危险。提示应注意该项目或操作可能对正在使用该设备的人员以及其他人员带来危险,如果忽视该警示而进行了错误的操作,可能会造成人身伤亡事故。
此符号意味着警告、注意。提示注意该项目或操作可能对正在使用该设备的人员以及其他人员带来危险,如果忽视该警示而进行了错误的操作,可能会造成人员伤害或设备损坏等财产损失。
另注:
上述所示图形符号中,即注意中所注事项,根据不同的情况可能造成严重后果,引起财产损失,请务必严格遵守。当检查或使用该设备时,要有专业人员操作。在检查和维修过程之前需切断电源,设备要可靠接地。
1.4.2 安全操作注意事项
2 产品外形及安装方法说明
2.1 安装前检查
开箱后取出应急照明集中电源,请检查以下几项,如果有损坏或异常情况,请立即致电经销商。
(1) 检查设备的铭牌并确认是您所订购的产品。
(2) 检查设备液晶屏是否完好、无破损。
(3) 确认设备箱中有钥匙、说明书及电池接线图等随机件。
(4) 确认 EPS 运输过程中无任何损坏(柜体变形、导线磨破、线端脱落、接头或螺丝松动等)。
2.2 产品外形
图2.1 外形尺寸图
2.3 安装环境及要求
禁止将应急照明集中电源安装在下列任何环境中。
(1) 高温雨淋腐蚀火源斜坡
(2) 请安装在远离金属粉末、尘埃、油、水的地方。
(3) 请安装在远离电磁辐射源的地方。
(4) 创造一个良好的散热系统,以下是可行的方法:
A.自然通风系统:只适用于低热量及广大空间。
B.人为通风系统:当机壳温度(TA)高过外围温度(TE)时就需安装空调.当两者温度接近,抽风系统的容量就要相对地增大。
(5) 请安装在没有振动的场所;
(6) 环境温度:-10℃~+55℃;
(7) 相对湿度:90%以下不结露;
(8) 使用场所:室内;
2.4 搬运注意事项
(1) 设备在搬运过程中严禁倒置;
(2) 设备在搬运过程中要轻搬轻放,严禁重放摔倒;
(3) 设备在搬运过程中严禁与其他硬物磕碰,以免损坏设备。
(4) 设备在搬运过程中禁止硬物顶在前门面板上,防止液晶屏损坏。
2.5 安装空间要求
(1) 设备上部与墙或任何物件距离最少应有60cm的空间。
(2) 机器正面要求最少要求60cm的空间,设备的前面必须有充足的检修空间。
(3) 设备的顶部不可放置任何物件。
(4) 安装侧视图如下:
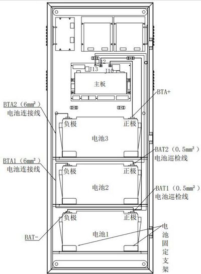
2.6 内部蓄电池组摆放及线路连接
注:在连接蓄电池组的过程中严禁短路,否则会导致设备损坏或火灾的危险。
3 接线端子的功能及使用
3.1 接线前注意事项
3.2 接线说明
3.3 接线端子功能说明
| 端子定义 | 名称 | 接线说明 |
|---|---|---|
| 市电检测功能端子 | “市电检测” | 用于市电检测功能的220V市电接入 |
| “市电检测” | ||
| AC220V输入 | L | 消防电输入的火线 |
| N | 消防电输入的零线 | |
| E | 大地线 | |
| 消防联动与反馈输入 | “常开” | 联动反馈(常开) |
| “常开” | 联动反馈(常开) | |
| “常闭” | 联动反馈(常闭) | |
| “常闭” | 联动反馈(常闭) | |
| LD+ | 信号联动(默认为干接点,可经拨码开关调至24V联动) | |
| LD- | 信号联动(默认为干接点,可经拨码开关调至24V联动) | |
| 485 通讯输入 | “RS485 接口”A | 通讯输入+(默认为 485 通讯可由拨码开关调至两总线通讯) |
| “RS485 接口”B | 通讯输入-(默认为 485 通讯可由拨码开关调至两总线通讯) | |
| “RS485 接口”GND | ||
| 2 回路输出 | J2-L | 第 1 回路输出火线 |
| J2-N | 第 1 回路输出零线 | |
| J2-E | 第 1 回路地线 | |
| J3-L | 第 2 回路输出火线 | |
| J3-N | 第 2 回路输出零线 | |
| J3-E | 第 2 回路地线 | |
| 通信总线 | PB+ | 通信总线正 |
| PB- | 通信总线负 |
3.4 标准配接线
J-D-0.5KVA-01、J-D-1KVA-02 的电缆规格(单位:mm²)
| 容量 | 输入 | 输出 | |||||
|---|---|---|---|---|---|---|---|
| L | N | PE | 回路 1 | 回路 2 | RS485 | 通信总线 | |
| 500W | 2.5 | 2.5 | 4 | 2.5 | 2.5 | 1.5 | 2.5 |
| 1000W | 2.5 | 2.5 | 4 | 2.5 | 2.5 | 1.5 | 2.5 |
注:本设备支持≤4 mm² 线直接接到输出回路端子,否则需要做接线端子,压在主板的输出回路端子上。
4 内部说明
4.1 内部操作说明
内部示意图如下
图 4.1 拨码开关及主备电开关位置示意图
4.1.1 按码开关说明
| 干接点信号联动 | LD-LD- | ON |
| 24V信号联动 | LD-LD+ | OFF |
4.1.2 内部按键功能说明
| 位置 | 名称 | 功能说明 |
|---|---|---|
| D-ZB06 | 启动键 | 在没有主电的情况,由备电初次开机, 则轻按“启动”键给系统上电,然后松开即可。 |
| 测试键 (试检键) | 在设备正常运行状态下,按住此键可模拟切断主电转入备电状态, 判断设备是否正常,松开此 键设备恢复主电状态。 | |
| 复位键 | 当按下此键时,主板CPU复位。 |
4.1.3 内部指示灯功能说明
| 位置 | 名称 | 功能说明 |
|---|---|---|
| D-ZB06 | STA | 工作状态指示灯:不通话时,慢闪;通讯时,快闪 |
| Rx | 下行通讯指示灯,有通讯时闪烁 | |
| Tx | 上行通讯指示灯,有通讯时闪烁 |
4.2 上电及其注意事项
4.2.1 通电运行前检查
(1)检查机器内部是否有异样,设备安装是否牢固;
(2)检查接线是否正确,连接是否牢固,不得存在线路脱落的现象;
(3)检查设备是否可靠接地;
(4)检查蓄电池组连接是否正确;
(5)用万用表测量市电输入电压是否为AC220V。
4.2.2 通电运行操作步骤
(1)打开主电开关,液晶屏亮起,设备进入自检状态。
(2)打开备电开关。
(3)观察液晶显示情况,显示面板上指示灯显示是否正确,显示界面无故障报警。
4.2.3 关机操作
(1)在主电工作时,先关闭备电开关,再关闭主电开关。
(2)在应急状态时,先关闭主电开关,再关闭备电开关。
注:本EPS在上电状态下主板上左侧强电危险区域不论主电开关是否开启均有强电电压存在,若要进行操作必须先断开本EPS消防输入电。
5 键盘操作及界面
5.1 面板说明
图5.1 操作面板
本操作面板在EPS上电启动时有自检功能,自检时所有指示灯亮起,蜂鸣器发声,为正常现象。“运行状态”模式下,按键可直接跳转到该键所标示的功能界面。
面板各部分功能如下表:
| 序号 | 名称 | 功能说明 |
|---|---|---|
| 1 | 液晶显示窗 | 设备人机交互显示区: |
| 2 | 主电指示灯 | 指示设备是否工作在主电工作状态,主电工作时灯亮(绿色): |
| 3 | 备电指示灯 | 指示设备是工作备电状态,备电工作时灯亮(红色): |
| 4 | 充电指示灯 | 指示设备中的蓄电池充电器是否在充电,充电时灯亮(红色): |
| 5 | 应急指示灯 | 指示设备是否工作应急状态,应急工作时灯亮(红色): |
| 6 | 故障指示灯 | 指示设备是否存在故障,若有故障灯亮(黄色): |
| 7 | 按键区 | 设备人机交互操作: |
5.2 按键区说明
| 名称 | 功能 | 名称 | 功能 |
|---|---|---|---|
| 消音键 | 消除设备的报警声(光标左移) | 检查/自检键 | 检查液晶显示和蜂鸣器是否正常: |
| (强制)应急键 | 对设备进入强制应急或应急操作(下移) | 返回键 | 返回到运行界面: |
| 月检/年检键 | 对设备进入月检或年检操作(参数翻页) | 确认键 | 进入选择项(保存参数修改) |
| 向上键 | 向上移动选择项(调整参数值) | 复位键 | 使设备恢复到上电状态: |
| 向下键 | 向下移动选择项(调整参数值) |
5.3 工作模式介绍
液晶显示界面的左侧为设备的工作模式界面。该界面显示“运行状态”“故障信息”“参数设定”三个工作模式。
“运行状态”:主要是显示设备的运行状态,运行状态显示说明如下表:
| 序号 | 运行状态显示 | 功能介绍 |
|---|---|---|
| 1 | 自动/手动 | 设备进入应急的方式。 |
| 2 | 联动 | 设备检测到联动信号。 |
| 3 | 年检/月检 | 设备检测到年检/月检信号。 |
| 4 | 应急/强制应急 | 设备运行状态 |
除运行状态显示外,还有参数信息显示,具体参数信息如下,
运行参数:
主电电压、输出电压、输出电流、电池组电压、电池一电压、电池二电压、电池三电压;
输出回路参数:
回路 1 电压、回路 1 电流、回路 2 电压、回路 2 电流、“故障信息”:显示设备的故障信息。
“参数设定”:显示参数的设定,具体内容如下表所述:
| 序号 | 参数 | 功能说明 |
|---|---|---|
| 1 | 主电电压检测 | 当主电电压与实际检测不一致时,可调整此项使显示与测量一致。 |
| 2 | 输出电压检测 | 当输出电压与显示不一致时,可调整此项。 |
| 3 | 输出电流检测 | 当输出电流与显示不一致时,可调整此项。 |
| 4 | 本机 ID 设置 | 给设备设定一个 1-255 的现场备用 ID。 |
| 5 | 12V 侦测 | 第一节电池电压的调整。当电池一电压测量与显示不一致时,调整此项。 |
| 6 | 24V 侦测 | 前两节电池串联的电压调整。当电池二电压测量与显示不一致时,调整此项。 |
| 7 | 36V 侦测 | 三节电池串联的电压调整。当电池三电压测量与显示不一致时,调整此项。 |
| 8 | 充电电压检测 | 当充电电压与显示不一致时,可调整此项。 |
| 9 | 回路电流的检测 | 当回路电流与显示不一致时,调整此项。 |
| 10 | 0 电流设置 | 当没接负载情况下,输出电流与各个回路电流不为 0 时,调整此项。 |
| 11 | 回路检测设置 | 对相应的回路设置是否检测 |
5.4 常用操作说明
注:默认密码为按一下“向上”键和按三下“向下”键。
5.4.1 工作模式选择
5.4.2 “应急”及“月检/年检”操作
5.4.3 取消应急操作
若要取消应急,须按复位键并输入密码,确认即取消应急。
5.4.4“故障信息”查询
5.4.5“参数设定”操作
在参数设定界面的尾页有功能选项“0 电流”、“回路检测”、“开路检测”、“市电检测”、“30 分钟应急”。详见功能操作说明。
进入参数设定界面需要输入正确密码,默认密码为一“向上”,三“向下”。
注:1、在参数设定界面有几个按键是功能复用的,其中“向上”键是数字减,“向下”键是数字增,“消音”键是移位操作,“(强制)应急”键是向下移操作,“月检/年检”翻页,示意图如下
图5.2参数设定操作复用按键图
例:主电电压设定
第一步用万用表的交流档实测主电电压,例如实测电压是227伏,显示电压是219伏;
第二步输入设定值:
第三步按“确认”键设定:
5.5 功能操作说明
本EPS功能操作界面位于参数设定页的末页,详细页面及设置如下。
5.5.1 0电流功能及操作
在本电源所有回路开路或空载的情况下进行电流调零操作将输出电流调零,点击确认键即调0。
5.5.2 市电检测功能及操作
在市电接入市电检测端子时,若要开启本产品的市电检测功能,须将AC220V检测选项按向上键调为1,按确认键保存设置。
5.5.3 回路检测功能
将所有回路按接线要求接线后,开启回路检测功能,将所有已经接好的回路按照其相对应位置把0调为1,按确认键保存设置(可在此项全部设置完成后再按确认)。
5.5.4 开路检测功能
若回路负载过小导致回路电流过小导致本EPS报故障,则可使用本功能关闭开路检测功能。
5.5.5 30分钟应急
若发生主电掉电故障则应急状态启动,该功能开启时,为保证蓄电池工作状态仅应急30分钟,30分钟后自动关掉输出。若不开启该功能,主电掉电时,无此操作情况下应急状态会持续到备电保护状态。
注:在本功能页的每个功能的操作都必须在该功能操作后按确认键才能保存生效,确认后跳转至参数设置第一页。
6 常见故障及解决方法
| 故障现象 | 故障分析 | 解决方法 |
|---|---|---|
| 应急续电时间过短 | 电池容量不足 | 充电24小时内再次放电查看应急时间或联 系设备厂家更换蓄电池 |
| 某节电池故障报警 | 电池损坏 | 联系设备厂家更换电池 |
| 设备不进入应急工作状态 | 电池总电压低 | 给电池充电后机器恢复正常 |
| 其它原因 | 联系厂家进行现场分析维修 | |
| 输出回路保险一上就烧掉 | 输出存在短路或过载现象 | 1 用万用表测量输出两端是否短路,检查 输出回路; 2 检查输出负载是否过载,减少回路负载; |
| 市电状态下无输出电压 | 输出线路管保险烧毁 | 更换同型号保险 |
| 开关电源故障 | 联系设备厂家更换电源 | |
| 连接线虚接 | 紧固连接线 | |
| 应急状态下无输出电压 | 输出线路管保险烧毁 | 更换同型号保险减轻负载 |
| 连接虚接 | 紧固连接线 | |
| 充电器开路或短路故障 备电故障 | 充电器故障 | 联系设备厂家更换充电器 |
| 检查充电器线路是否有接触良好 | 紧固各接触点 | |
| 电池线接触不牢靠或已断层 | 固定连接线或换线 | |
| 电池电压异常 | 连线虚接 | 紧固电池连线 |
| 开关电源损坏 | 联系设备厂家更换开关电源 | |
| 主板故障 | 更换主板 | |
| 操作面板按键不工作 | 操作面板故障 | 联系设备厂家更换操作面板 |
| 与控制主机无法通信 | 通信连接线接错 | 纠正连接线。 |
| 主板故障 | 联系设备厂家更换主板 |
特别说明:
不是用户外围线路的故障,请不要擅自处理,应及时与公司取得联系,由专业技术人员处理。
7 维护与保养
一旦本 EPS 出现故障,不可私自拆卸本 EPS 主板上的盖板,拆卸操作不当可引起触电危险,拆卸市电和消防电之前,务必确保其己经完全断电。
7.1 维护保养注意事项
(1)维护人员必须按照定期检查的方法,对设备进行维护。
(2)除受过专业训练的维护维修人员外,严禁其他人触摸设备内部;
(3)进行维护前,必须切断设备的电源,切断电源后的短时间内,电容器上仍积存有高电压。
(4)不能直接触碰 PCB 板上的元器件,否则容易静电损坏本设备。
(5)维修完毕后,必须确认所有螺丝均已锁紧,所有线端都已复原。
(6)每六个月必须进行一次定期检查;
7.2 日常检查
为了防止设备发生故障,保证设备正常运行,延长使用寿命,用户需要经常性对设备进行检查(每日)、维护,其内容如下
(1)安装环境是否有异常;
(2)设备是否有异常的振动和异常的声音;
(3)设备是否有过热或变色;
(4)现场环境是否有异常气味;
7.3 定期检查
为了防止故障发生,确保其长时间高性能稳定运行,用户应定期(半年)进行检查维护一次(维护情况应记录存档),其内容如下表所示:
| 检查项目 | 检查内容 | 检查方法 | 检测标准 |
|---|---|---|---|
| 工作环境 | 湿度/湿度 | 湿度计/湿度计 | 湿度在0℃~40℃湿度在 20%-90% |
| 外观及零部件 | 是否有异常振动、异常声音 螺丝是否有松动 是否有变形、破损 是否有污染及粉尘 | 目测 | 无异常 |
| 电源电压 | 设备电源电压是否正常 | 万用表测量 | 满足额定输入电压 |
| 连接导线 | 是否发黑、变影、过热变色 | 目视 | 无异常 |
| 主模块 | 是否有烧伤、破损 | 目视 | 无异常 |
| 插接件 | 是否有松动、变形、破损 | 目视 | 无异常 |
| 线路板 | 是否有变色、变形、有污渍 | 目视 | 无异常 |
| 液晶显示 | 操作面板的LED灯是否正常 按键操作是否正常 显示屏亮度、显示是否正常 | 目视 | 无异常 |
| 电池 | 是否漏电、鼓胀、破损 | 目视 使用万用表测量 使用秒表测量 | 无异常 |
8 保修条例
1. 本产品保修一年(自设备出厂之日起计算),终身维修。
2. 在保修期间内,非人为出现的质量问题,厂家免费负责维修,人为造成的故障或保修期已满,维修只收取相应的配件费用和维修成本费用。
3. 出厂设备非经我公司允许,不得由其他相关设备厂家维修、拆卸、更改,否则产生任何后果我公司不负任何责任。
4. 免责条款:因下列原因造成的产品故障不在厂家12个月免费保修服务承诺范围之内:
(1)用户不依照《产品说明书》中所列程序进行正确的操作;
(2)用户未经与厂家沟通自行修理产品或擅自改造产品造成产品故障;
(3)用户超过产品的标准使用范围使用产品而引发产品故障;
(4)因用户使用环境不良导致产品器件异常老化或引发故障;
(5)由于地震、火灾、风水灾害、雷击、异常电压或其它自然灾害等不可抗的因素造成的产品损坏;
5. 在下列情况下,厂家有权不予提供保修服务:
(1)厂家在产品中标示的品牌、商标、序号、铭牌等标识毁损或无法辨认时;
(2)用户未按双方签订的《购销合同》付清货款时;
(3)用户对厂家的售后服务提供单位故意隐瞒产品在安装、配线、操作、维护或其它过程中的不当使用情况时。