J-PD-0.5KVA-02 壁挂500W应急照明配电箱

参考资料
文件:J-PD-1KVA-01&J-PD-0.5KVA-02&J-PD-0.3KVA-03应急照明配电箱说明书 1675933333329.pdf
检验报告
认证证书
高清图片
一、技术特征
- 市电检测功能
- 消防联动功能
- 电路有短路、过载、过电压保护功能
- 符合国家标准:GB17945-2010
二、技术指标及参数说明
| 型号 特性 | J-PD-0.5KVA-02 | |
|---|---|---|
| 输出 | 额定功率 | 0.5KVA(主电) |
| 输出电压 | DC36V(主电) | |
| 输出电流 | 单回路电流<5A; 总电流<14.8A | |
| 输出回路 | 8 回路 | |
| 输入 | 额定电压 | AC220V |
| 频率 | 50Hz | |
| 蓄 电 池 | 电池类型 | 锂电池 |
| 电池电压 | DC18.5V | |
| 电池容量 | 1200mAh | |
| 电池组数 | 1 组 | |
| 防护等级 | IP33 | |
| 应急转换时间 | ≤0.1s | |
| 应急时间 | ≥90 分钟 | |
| 工作环境 | 环境温度:-10℃~+55℃;相对湿度:0~90% 不结露 | |
| 适应负载 | 本公司生产的两总线自带电源消防灯具 | |
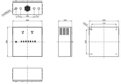
| 设备外形尺寸 | 440×440×200 (高×宽×深 mm) | |
| 安装方式 | 壁挂 | |
| 进线方式 | 箱体下方进出线 | |
三、端子接线示意及其说明
1. 端子接线示意
2.端子定义说明
| 端子定义 | 名称 | 接线说明 |
|---|---|---|
| 消防电输入 | L | 消防电输入的火线 |
| N | 消防电输入的零线 | |
| E | 大地线 | |
| 市电信号(可不接线) | L | 市电输入的火线 |
| N | 市电输入的零线 | |
| 联动输出 | 常开于节点 | 联动输出线 |
| 常闭于节点 | 联动输出线 | |
| 引自PB总线 | PB+ | PB总线通信正 |
| PB- | PB总线通信负 | |
| 引自485总线 | A | 通讯输入+ |
| B | 通讯输入- | |
| GND | 通讯地线(可不接线) | |
| 联动输入 (默认为干节点) | LD+ | 干节点或DC24V联动输入线 |
| LD- | 干节点或DC24V联动输入线 | |
| 8回路总线输出 | V1+ | 第1回路电源总线输出+ |
| V1- | 第1回路电源总线输出- | |
| V2+ | 第2回路电源总线输出+ | |
| V2- | 第2回路电源总线输出- | |
| V3+ | 第3回路电源总线输出+ | |
| V3- | 第3回路电源总线输出- | |
| V4+ | 第4回路电源总线输出+ | |
| V4- | 第4回路电源总线输出- | |
| V5+ | 第5回路电源总线输出+ | |
| V5- | 第5回路电源总线输出- | |
| V6+ | 第6回路电源总线输出+ | |
| V6- | 第6回路电源总线输出- | |
| V7+ | 第7回路电源总线输出+ | |
| V7- | 第7回路电源总线输出- | |
| V8+ | 第8回路电源总线输出+ | |
| V8- | 第8回路电源总线输出- |
3.接线方法
安装人员严格按照3.1端子接线布置图规范接线。对照面板示意图对端子进行接线,注意:线路必须正确连接,如不正确连接则可能影响设备的正常运行。
四、外形尺寸与安装说明
1.安装说明
安装前,需检查设备各连接处无松动、脱落现象,按照以下的空间要求,进行固定安装,固定尺寸参见4.2中的安装尺寸图。
1)设备正面要求最少应有60cm的空间;
2)设备的顶部不可放置任何物件;
3)设备的前面必须有充足的检修空间;
2. 外形尺寸
五、维护保养
1. 日常检查
为了防止设备发生故障,保证设备正常运行,延长使用寿命,用户需要经常性对设备进行检查(每日)、维护,其内容如下:
- 安装环境是否有异常;
- 设备是否有异常的振动和异常的声音;
- 设备是否有过热或变色;
- 现场环境是否有异常气味
2. 定期检查
为了防止故障发生,确保其长时间高性能稳定运行,用户应定期(半年)进行检查维护一次(维护情况应记录存档),其内容如下表所示:
| 检查项目 | 检查内容 | 检查方法 | 检测标准 |
|---|---|---|---|
| 工作环境 | 温度/湿度 | 温 度 计 / 湿 度计 | 温度在-10℃~55℃;湿度 ≤90% |
| 外观及零部件 | 是否有异常振动、异常声音 螺丝是否松动 是否有变形、破损 是否有污渍及粉尘 | 目测 | 无异常 |
| 输入输出电压 | 设备输入输出电压是否正常 | 万用表测量 | 满足额定输入输出电压 |
| 连接导线 | 是否变形、污损、过热变色 | 目视 | 无异常 |
| 线路板 | 是否变色、变形、有污渍 | 目视 | 无异常 |
| 指示灯 | 各状态指示是否正常 | 目视 | 无异常 |
3. 维护保养和检查时的注意事项
- 维护人员必须按照定期检查的方法,对设备进行维护。
- 除受过专业训练的维护维修人员外,严禁其他人触摸内部;
- 进行维护前,必须切断设备的电源。
- 不能直接触碰 PCB 板上的元器件,否则容易静电损坏设备。
- 维护完毕后,必须确认所有螺丝均已锁紧,所有线端都已复原。
- 每 6 个月进行一次定期检查。
附一
地址拨码说明
拨码开关的地址码形式为 FXXX0000 共 8 位数,其中 XXX 为开关标号的加权数总和。拨码开关的地址码范围(F0010000~F2540000)
举例:
- 如开关标号 1 打开(往 ON 的方向)对应的数值为+1=1:对应的地址为 F0010000;
- 如开关标号 2 打开(往 ON 的方向)对应的数值为+2=2:对应的地址为 F0020000;
- 如开关标号 3 打开(往 ON 的方向)对应的数值为+4=4:对应的地址为 F0040000;
- 如开关标号 4 打开(往 ON 的方向)对应的数值为+8=8:对应的地址为 F0080000;
- 如开关标号 1、2 打开(往 ON 的方向)对应的数值为+1+2=3:对应的地址为 F0030000;
- 如开关标号 2、7 打开(往 ON 的方向)对应的数值为+2+64=66:对应的地址为 F0660000;
- 如开关标号 1、3、7 打开(往 ON 的方向)对应的数值为+1+4+64=69:对应的地址为F0690000;
- 如开关标号 2、4、8 打开(往 ON 的方向)对应的数值为+2+8+128=138:对应的地址为F1380000;
- 如开关标号 1、2、3、4 打开(往 ON 的方向)对应的数值为+1+2+4+8=15:对应的地址为 F0150000;
- 如开关标号 1、2、3、4、5 打开(往 ON 的方向)对应的数值为+1+2+4+8+16=31:对应的地址为 F0310000;